Contact Agent

Contact Templeton Robinson (Ballyhackamore)

Contact Templeton Robinson (Ballyhackamore)

4 Bed Semi-Detached House

64 Station Road

Sydenham, Belfast, BT4 1RF

offers over £245,000
  • Status For Sale
  • Property Type Semi-Detached
  • Bedrooms 4
  • Receptions 2
  • Heating GFCH
  • EPC Rating C70 / C73 -
  • Stamp Duty
    Higher amount applies when purchasing as buy to let or as an additional property
    £2,400 / £14,650*
  • Typical Mortgage
    Click price to use our mortgage calculator
EPC Rating

Key Features & Description

Superb, modern semi-detached property
Bright and spacious accommodation throughout
Four double bedrooms, over two floors
Large living area, open to dining
Kitchen with range of appliances and access to rear
Main family bathroom on first floor
Enclosed rear garden with sunny aspect
GFCH / uPVC double glazing throughout
Walking distance to Belmont Road
Bus & Rail links to Belfast City Centre & beyond close by
Excellent local amenities, schools and parks all within walking distance
No onward chain
Description
Brilliantly located within the ever popular Sydenham area, this large semi-detached home has been modernised in recent years giving any purchaser little to do bar move in.

Well-proportioned throughout, the layout offers a good degree of versatility. The kitchen is large enough to incorporate a casual dining area whilst all four bedrooms (two on each of the upper levels) can be classed as doubles.

Local amenities on the Holywood Road and Belmont Village are within walking distance whilst the city centre is only six minutes away by train.

Award-winning Victoria Park and even the Titanic Quarter are also a short stroll away.

Early internal inspection is strongly recommended.

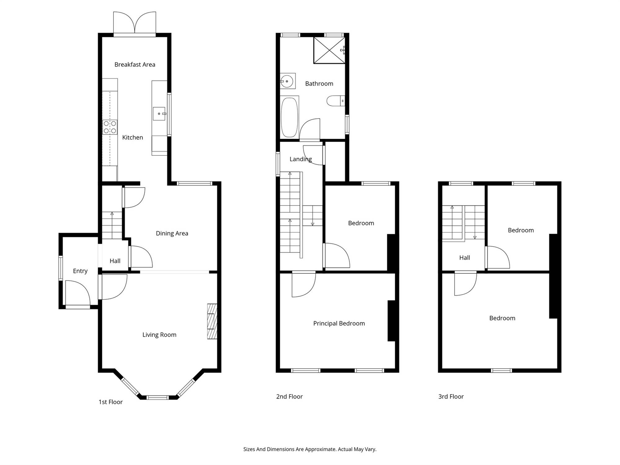
Rooms

Composite front door.
HALLWAY: Engineered wood flooring.
LIVING ROOM: 15' 3" X 14' 8" (4.64m X 4.46m) (Into bay and at widest points). Fireplace with slate hearth. Engineered wood flooring. Arch to:
DINING ROOM: 10' 12" X 7' 6" (3.35m X 2.28m) Engineered wood flooring. Under stairs storage cupboard. Arch to:
KITCHEN: 17' 7" X 8' 4" (5.37m X 2.53m) Range of high and low level high gloss units. Work surfaces with single drainer stainless steel sink unit. Integrated appliances including Candy 4 ring hob and matching underbench oven. Stainless steel extractor fan. Caple fridge/freezer, Candy dishwasher, plumbed for washing machine. Polished ceramic tiled floor. CASUAL DINING AREA: French doors to garden.
LANDING: Built-in cupboard with Worcester Bosch natural gas boiler.
BATHROOM: White suite comprising panelled bath with feature splash tiling, low flush wc, wash hand basin with tiled splashback and storage underneath. Separate tiled shower cubicle with "rain" head and additional telephone hand shower. Chrome heated towel rail, feature ceramic tiled floor.
BEDROOM (1): 14' 9" X 11' 10" (4.50m X 3.61m) At widest points
BEDROOM (2): 10' 9" X 8' 10" (3.27m X 2.70m) At widest points
BEDROOM (3): 14' 9" X 11' 10" (4.50m X 3.60m) At widest points
BEDROOM (4): 10' 9" X 8' 10" (3.28m X 2.70m) At widest points
LANDING:
Pedestrian gate with flagged path to front door.
FRONT GARDEN In lawn. Continuation of flagged pathway to side leading to:
REAR GARDEN Lawn with variety of well-stocked flowerbeds. Variety of plants and flowering shrubs. Patio.

Broadband Speed Availability

Ultrafast

Potential Speeds for 64 Station Road

Max Download
1800
Mbps
Max Upload
220
Mbps
The speeds indicated represent the maximum estimated fixed-line speeds as predicted by Ofcom. Please note that these are estimates, and actual service availability and speeds may differ.

Property Location

Show Map

Mortgage Calculator

Disclaimer: The following calculations act as a guide only, and are based on a typical repayment mortgage model. Financial decisions should not be made based on these calculations and accuracy is not guaranteed. Always seek professional advice before making any financial decisions.

Directions

Heading countrybound on Holywood Road, turn left opposite Circular Road shops. Property is then near the bottom on the left hand side.

Contact Agent

Contact Templeton Robinson (Ballyhackamore)

Contact Templeton Robinson (Ballyhackamore)

Request More Information
Requesting Info about...
64 Station Road, Sydenham, Belfast, BT4 1RF 64 Station Road, Sydenham, Belfast, BT4 1RF

By registering your interest, you acknowledge our Privacy Policy