5 Bed Detached House
33 Caddy Road
Randalstown, Antrim, BT41 3DL
asking price
£750,000
Key Features & Description
Magnificent Detached Family Home Dating back to 1720
Retaining a Host of Period Features, Character and Charm
Deceptively Spacious and Adaptable Accomodation
High Standard of Finish Throughout
Five Bedrooms
Drawing Room, Conservatory, Dining Room and Family Room
Country Style Kitchen with Aga Range and Casual Dining Area
Family Bathroom, 2 Ensuite Bathrooms plus Additional Shower Room/Wet Room
Utility Room and Cloakroom
Oil Fired Central Heating
Superb Elevated Site Approximately 2 Acres With Beautiful Views Over River Maine Renowned For It"s Trout And Salmon Fishing
Beautiful Terrace And Lower Terrace With Delightful Outlook Over River
Formal Gardens in Lawns with Feature Pond and Patio Areas
Detached Garage and Garden Store
Outside Home Office/Study/Art Studio
Popular and Convenient Semi Rural Location close to Randalstown with its array of Local Amenities
Belfast Approximately 30 minutes, International Airport 20 minutes,. Ballymena 10 minutes
Viewing By Private Appointment
Description
Beautifully situated on the periphery of the popular town of Randalstown this handsome detached country residence is positioned on a stunning elevated site with breath-taking views along the River Maine.
The property itself dates back to 1720 and has abundance of character and charm typical of houses of this era and yet provides a modern layout with accommodation deceptive from an external appraisal.
In brief the accommodation provides for five bedrooms, four reception rooms together with country style kitchen with dining, family bathroom, shower room, 2 ensuites and utility room.
Externally the site extends in total to 2 acres with well tended gardens in lawns wand patio areas, garage, garden store and external office/study, ideal for those working from home.
Randalstown has a host of excellent local amenities and is a short distance from the M2 and M22 Motorway networks giving comfortable access to Belfast which is approximately 30 minutes away, Ballymena 10 minutes, 20 minutes from International Airport and 35 minutes from the North Coast.
Viewing is strictly by private appointment through our Belfast Office on 02890 668888
Beautifully situated on the periphery of the popular town of Randalstown this handsome detached country residence is positioned on a stunning elevated site with breath-taking views along the River Maine.
The property itself dates back to 1720 and has abundance of character and charm typical of houses of this era and yet provides a modern layout with accommodation deceptive from an external appraisal.
In brief the accommodation provides for five bedrooms, four reception rooms together with country style kitchen with dining, family bathroom, shower room, 2 ensuites and utility room.
Externally the site extends in total to 2 acres with well tended gardens in lawns wand patio areas, garage, garden store and external office/study, ideal for those working from home.
Randalstown has a host of excellent local amenities and is a short distance from the M2 and M22 Motorway networks giving comfortable access to Belfast which is approximately 30 minutes away, Ballymena 10 minutes, 20 minutes from International Airport and 35 minutes from the North Coast.
Viewing is strictly by private appointment through our Belfast Office on 02890 668888
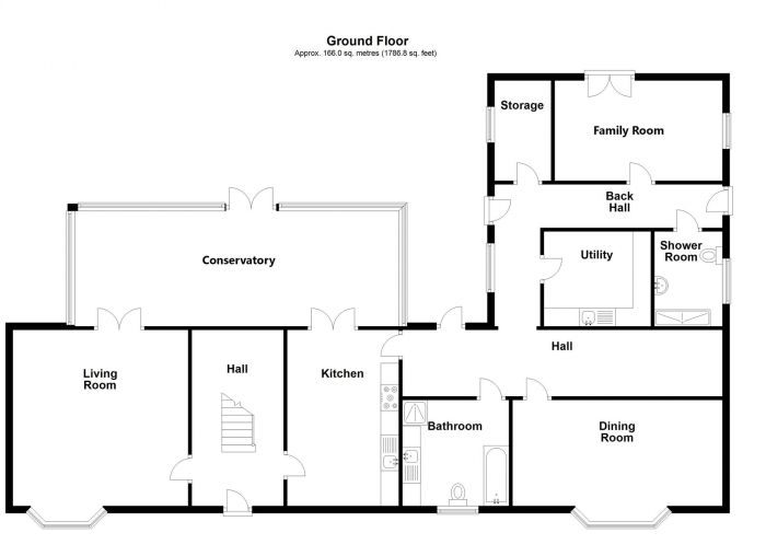
Rooms
ENTRANCE HALL:
Hardwood door to tiled entrance hall.
LIVING ROOM: 17' 5" X 15' 8" (5.31m X 4.78m)
Original stone fireplace with open fire. Exposed beams.
KITCHEN / DINING: 17' 4" X 16' 3" (5.28m X 4.95m)
Range of high and low level units with Belfast sink. Aga Range. Integrated dishwasher. Integrated fridge. Tiled floor and double doors to Conservatory.
CONSERVATORY WITH BOUGAINVILLA: 29' 6" X 10' 4" (8.99m X 3.15m)
Tiled floor. Access to rear patio. Mature Bougainvillea plant.
REAR HALLWAY:
DINING ROOM: 18' 8" X 15' 7" (5.69m X 4.75m)
Marble fireplace. Exposed beams. Solid oak panelling.
FAMILY ROOM: 15' 3" X 9' 4" (4.65m X 2.84m)
Brick fireplace inset gas fire. French doors leading to patio.
BATHROOM:
Feature free standing claw and ball foot roll top cast iron bath with telephone hand shower. Separate shower enclosure. Low flush WC. Wash hand basin with vanity unit.
SHOWER ROOM:
Walk-in-shower enclosure. Low flush WC. Pedestal wash hand basin.
UTILITY ROOM: 9' 7" X 7' 9" (2.92m X 2.36m)
High and low level units. Single drainer sink unit. Plumbed for washing machine. Access to roofspace.
CLOAKROOM/BOOT ROOM:
Oil fired boiler.
BEDROOM (2): 9' 5" X 9' 0" (2.87m X 2.74m)
ENSUITE:
White suite comprising panelled bath with mixer taps. Telephone hand shower. Low flush WC. Pedestal wash hand basin.
BEDROOM (3): 14' 2" X 11' 1" (4.32m X 3.38m)
BEDROOM (4): 10' 3" X 9' 8" (3.12m X 2.95m)
BEDROOM (5): 9' 5" X 9' 3" (2.87m X 2.82m)
Built in Wardrobe units.
PRINCIPAL BEDROOM: 16' 6" X 16' 1" (5.03m X 4.90m)
ENSUITE:
White suite comprising panelled bath with mixer taps. Telephone hand shower. Low flush WC. Pedestal wash hand basin.
DETACHED GARAGE: 23' 5" X 11' 7" (7.14m X 3.53m)
SHED: 11' 8" X 11' 5" (3.56m X 3.48m)
OUTSIDE HOME OFFICE/STUDY/ART STUDIO: 15' 7" X 8' 5" (4.75m X 2.57m)
Extensive site extending to 2.5 acres laid predominantly in lawn with patio areas and views over River Maine.
Broadband Speed Availability
Potential Speeds for 33 Caddy Road
Max Download
1000
Mbps
Max Upload
220
MbpsThe speeds indicated represent the maximum estimated fixed-line speeds as predicted by Ofcom. Please note that these are estimates, and actual service availability and speeds may differ.
Property Location
Mortgage Calculator
Directions
Randalstown
Contact Agent
Contact Simon Brien (Holywood)
Request More Information
Requesting Info about...
33 Caddy Road, Randalstown, Antrim, BT41 3DL
By registering your interest, you acknowledge our Privacy Policy
By registering your interest, you acknowledge our Privacy Policy