Retail
4 Causeway Street
Portrush, BT56 8AB
yearly
£15,000
- Status For Rent
- Property Type Retail
- Bathrooms 1
Key Features & Description
PVC Double Glazed Windows
Solid Roller Shutters Controlled By Remote Control
Sea View To Front
Service Charge Presently £800.00 Per Annum To Include Buildings Insurance
Access To Rear
Negotiable Completion Date
Alarm & CCTV Alarm System
Hot Food Premises Prohibited - Retail Use Only
Description
Armstrong Gordon are delighted to present an excellent opportunity to lease this generously proportioned and completely vacant retail unit, offering exceptional flexibility for a broad variety of commercial uses (excluding hot food). Perfectly positioned in the bustling heart of Portrush town centre, this property provides an ideal setting for businesses seeking high visibility and consistent footfall. The unit boasts an expansive and bright main retail area, offering ample space for a wide range of layouts or merchandising options. Additional accommodation includes a well appointed kitchen area, a separate W.C. complete with wash hand basin, a practical storage room and a rear hall that enhances the functionality of the space. With its versatile layout and prime central location, this property presents an outstanding rental opportunity for any business looking to establish or expand its presence in one of Portrushs most sought after commercial areas. Enquiries and viewing appointments are warmly welcomed through the agent.
Armstrong Gordon are delighted to present an excellent opportunity to lease this generously proportioned and completely vacant retail unit, offering exceptional flexibility for a broad variety of commercial uses (excluding hot food). Perfectly positioned in the bustling heart of Portrush town centre, this property provides an ideal setting for businesses seeking high visibility and consistent footfall. The unit boasts an expansive and bright main retail area, offering ample space for a wide range of layouts or merchandising options. Additional accommodation includes a well appointed kitchen area, a separate W.C. complete with wash hand basin, a practical storage room and a rear hall that enhances the functionality of the space. With its versatile layout and prime central location, this property presents an outstanding rental opportunity for any business looking to establish or expand its presence in one of Portrushs most sought after commercial areas. Enquiries and viewing appointments are warmly welcomed through the agent.
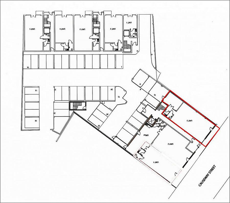
Rooms
GROUND FLOOR:
MAIN SHOP: (7.37m X 12.85m)
With laminate wood floor and recessed plug sockets.
REAR HALLWAY: (1.24m X 3.35m)
KITCHEN: (1.57m X 1.96m)
With single drainer stainless steel sink unit, low level units, space for fridge and tiled floor.
STORAGE: (3.86m X 6.02m)
With light and power points and laminate wood floor.
SEPARATE WC:
With wash hand basin with tiled splashback and tiled floor.
Broadband Speed Availability
Potential Speeds for 4 Causeway Street
Max Download
80
Mbps
Max Upload
20
MbpsThe speeds indicated represent the maximum estimated fixed-line speeds as predicted by Ofcom. Please note that these are estimates, and actual service availability and speeds may differ.
Property Location
Directions
Proceeding along Main Street in Portrush, turn left onto Causeway Street. The retail unit is situated on the right hand side, directly opposite the No.1 at Causeway Street Restaurant, in a central and highly accessible location within Portrush.
Contact Agent
Contact Armstrong Gordon & Co
Request More Information
Requesting Info about...
4 Causeway Street, Portrush, BT56 8AB
By registering your interest, you acknowledge our Privacy Policy
By registering your interest, you acknowledge our Privacy Policy