Contact Agent
Contact Ulster Property Sales (UPS) Newtownards
4 Bed Semi-Detached House
9 Blackwood Park
Newtownards, BT23 4YW
offers around
£284,950
Key Features & Description
Semi-detached family home in the popular Blackwood Park development
Spacious living areas including a generous living room and a snug with garden access
Modern kitchen with Quartz work surfaces, integrated appliances, and separate utility room
Three well-proportioned bedrooms, including a master with ensuite shower room
Family bathroom with panelled bath and shower, plus a convenient first-floor WC
Gas fired central heating system and UPVC double glazed windows throughout
Integral garage providing power and light, with an up-and-over roller door
Fully enclosed rear garden with lawn, decking, paved seating area, and driveway for multiple vehicles
Description
An attractive, semi-detached home located in the popular Blackwood Park development, conveniently close to local amenities and main routes to Belfast. This well-maintained property offers modern living over three floors, benefits from extra-height ceilings on the ground and first floors, and is ready to move into.
On entering, a tiled entrance hall provides access to the snug, utility room, and integral garage. The snug features a tiled floor and double doors leading to the rear garden, while the utility room is fitted with high and low level units, a stainless steel sink, space for a washing machine, and rear garden access. The garage has power, light, and an up-and-over roller door.
The first floor comprises a spacious kitchen/dining room with modern units, quartz work surfaces, integrated appliances including dishwasher, eye-level oven and microwave, 4-ring gas hob with stainless steel splashback and extractor fan, and space for dining. The living room is generous in size and receives plenty of natural light, complemented by a convenient guest WC.
On the second floor, the master bedroom includes an ensuite shower room, with two further bedrooms and a family bathroom completing the accommodation. The landing provides additional storage and access to the roof space.
Externally, the property offers off-street parking to the front and a fully enclosed rear garden with lawn, mature shrubs and hedges, paved seating area, and a large composite decking area. Early viewing is recommended to fully appreciate this well-presented family home, its practical layout, modern finish, and desirable location within Blackwood Park.
An attractive, semi-detached home located in the popular Blackwood Park development, conveniently close to local amenities and main routes to Belfast. This well-maintained property offers modern living over three floors, benefits from extra-height ceilings on the ground and first floors, and is ready to move into.
On entering, a tiled entrance hall provides access to the snug, utility room, and integral garage. The snug features a tiled floor and double doors leading to the rear garden, while the utility room is fitted with high and low level units, a stainless steel sink, space for a washing machine, and rear garden access. The garage has power, light, and an up-and-over roller door.
The first floor comprises a spacious kitchen/dining room with modern units, quartz work surfaces, integrated appliances including dishwasher, eye-level oven and microwave, 4-ring gas hob with stainless steel splashback and extractor fan, and space for dining. The living room is generous in size and receives plenty of natural light, complemented by a convenient guest WC.
On the second floor, the master bedroom includes an ensuite shower room, with two further bedrooms and a family bathroom completing the accommodation. The landing provides additional storage and access to the roof space.
Externally, the property offers off-street parking to the front and a fully enclosed rear garden with lawn, mature shrubs and hedges, paved seating area, and a large composite decking area. Early viewing is recommended to fully appreciate this well-presented family home, its practical layout, modern finish, and desirable location within Blackwood Park.
Rooms
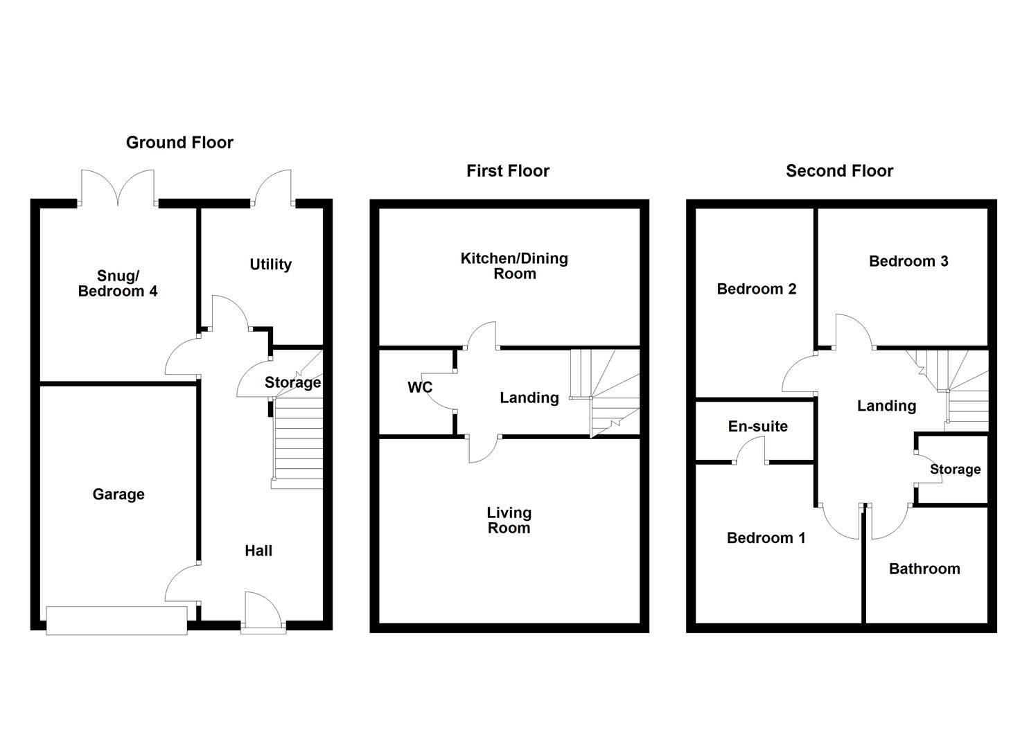
Accommodation Comprises:
Ground Floor
Entrance Hall
Tiled floor, under stair storage.
Snug 10'1 X 11'06 (3.07m X 3.51m)
Tiled floor, double doors to back garden.
Utility Room
Range of high and low level units, stainless steel sink and drainer with mixer tap, space for washing machine, part tiled walls, tiled floor, door to back garden.
Garage 10'10 X 16'11 (3.30m X 5.16m)
Up and over roller door, power and light.
First Floor
Landing
Kitchen 18'11 X 8.08 (5.77m X 2.44.2.44)
Modern range of high and low level units, stainless steel sink with drainer and mixer tap, 4 ring gas hob, stainless steel splashback, stainless steel extractor fan and hood, integrated dishwasher, integrated eye level oven and microwave, quartz worksurface, tiled floor, space for dining.
Living Room 18'11 X 13'01 (5.77m X 3.99m)
WC
White suite comprising low flush wc, wash hand basin with mixer tap and splashback, tiled floor.
Second Floor
Landing
Storage, access to roofspace.
Master Bedroom 12'01 X 11'08 (3.68m X 3.56m)
Ensuite
White suite comprising low flush wc, wash hand basin with mixer tap, corner shower enclosure, extractor fan, tiled floor.
Bedroom 2 8'08 X 11'06 (2.64m X 3.51m)
Double room
Bedroom 3 9'11 X 8'08 (3.02m X 2.64m)
Family bathroom
White suite comprising low flush wc, wash hand basin with mixer tap, panelled bath with mixer tap, shower enclosure, part tiled walls, tiled floor.
Outside
Front: Tarmac driveway with space for multiple vehicles
Rear: Fully enclosed area in lawn, mature shrubs and hedges, paved area, large composite decking area.
Rear: Fully enclosed area in lawn, mature shrubs and hedges, paved area, large composite decking area.
As part of our legal obligations under The Money Laundering, Terrorist Financing and Transfer of Funds (Information on the Payer) Regulations 2017, we are required to verify the identity of both the vendor and purchaser in every property transaction.
To meet these requirements, all estate agents must carry out Customer Due Diligence checks on every party involved in the sale or purchase of a property in the UK.
We outsource these checks to a trusted third-party provider. A charge of £20 + VAT per person will apply to cover this service.
You can find more information about the legislation at www.legislation.gov.uk
To meet these requirements, all estate agents must carry out Customer Due Diligence checks on every party involved in the sale or purchase of a property in the UK.
We outsource these checks to a trusted third-party provider. A charge of £20 + VAT per person will apply to cover this service.
You can find more information about the legislation at www.legislation.gov.uk
Video
Video
Broadband Speed Availability
Potential Speeds for 9 Blackwood Park
Max Download
1800
Mbps
Max Upload
220
MbpsThe speeds indicated represent the maximum estimated fixed-line speeds as predicted by Ofcom. Please note that these are estimates, and actual service availability and speeds may differ.
Property Location
Mortgage Calculator
Contact Agent
Contact Ulster Property Sales (UPS) Newtownards
Request More Information
Requesting Info about...
9 Blackwood Park, Newtownards, BT23 4YW
By registering your interest, you acknowledge our Privacy Policy
By registering your interest, you acknowledge our Privacy Policy