Multiple Agents
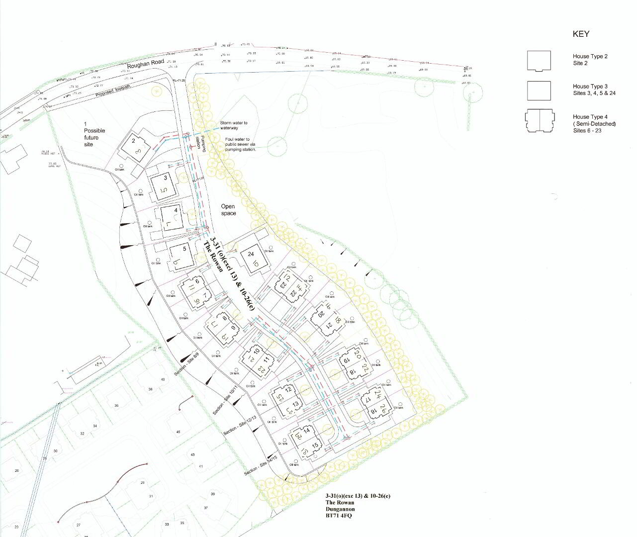
Site 18, Postal 22, The Rowan
Newmills, BT71 4FQ
- Status For Sale
- Property Type Semi-Detached
- Bedrooms 3
- Receptions 1
- Bathrooms 2
- Heating Oil
-
Stamp Duty
Higher amount applies when purchasing as buy to let or as an additional property£2,200 / £13,950*
Key Features & Description
NEW HOME . . . NEW ADVENTURES . . . NEW MEMORIES . . .
Take a moment to enjoy a breath of fresh air while admiring the beauty and tranquility of the open countryside, and is is easy to see how "The Rowan" could become a great place to call home. Situated on the edge of the Village, no details has been overlooked in the quest to ensure that the development would suit any buyers from first time home buyers to the established family looking their forever home.
The Rowan is a stunning development of of Georgian inspired Detached and Semi Detached homes. The thoughtfully designed houses incorporate many attractive features including the use of a natural stone and K Rend (where applicable).
The homes will be finished to an exceptionally high standard using high quality materials and workmanship. What's more, the versatility of this location speaks for itself - from young professionals making daily commute, to growing families or those wishing to downsize, The Rowan offers the perfect place for any buyer wishing to settle down.
These stylish family homes are within easy reach of Cookstown, Coalisland, Dungannon and M1 Motorway. Residents are within easy reach of local schools, towns, beautiful countryside and all of the sporting and recreational attractions of the local area.
The Developers, Firtree Developments Limited, have built their reputation on creating sylish homes, designed for modern living. The Rowan is situated in an ideal location, the sights and sounds of the countryside are on your doorstep. Boasting an impressive collection of detached and semi detached home each finished to a high, exacting turnkey specification leaving homeowners with little to do but move in. The Rowan ticks all of the boxes on the search of a new home.
Bringing You Closer Together
The accessibility of this location boasts the perfect balance of relaxed country living and convenience with easy commuting distance to Belfast via the M1 Motorway.
Enjoy a life in the peaceful village of Newmills, without compromising on convenience.
Why Choose A Firtree Developments Ltd Home?
Firtree Developments have built up a reputation of building outstanding desirable home because of their designs, quality and attention to details. The are passionate about their clients being able to acquire their dream home which are both stylish both inside and out. They appreciate that buiying your dream home is one of, if not the biggest financial investment you will ever make. With this in mind we want the experience of buying your dream home to be as enjoyablee a journey for you as possible.
Firtree Developments pride themselves on their ability to adapy to the changing demands of today's discerning purchasers.
ENVIRONMENTAL
Our new homes are energy-efficient with high levels of insulation thereby reducing heat loss and your lowering your fuel bills.
SAFETY & SECURITY
Double glazing windows locks, 3-point locking system to main doors, smoke, heat and carbon monoxide detectors.
NEW HOME WARRANTY
A 10 year Buildmark warranty will be available for all homes at The Rowan from NHBC which is responsible for setting the standards of the new house building industry.
YOUR NEW HOME
Owners have the satisfaction of know that Firtree Developments Ltd represents a team effort involving the dedication, commitment and expertise of our finest architects, craftsmen and Estate Agent. Owners will also benefit from a generous turnkey finish.
Each of these stunning housetypes will include the following array of outstanding features:
EXTERNAL FEATURES:
Traditional ConstructionHomes are constructed to the very latest SAP regulations with high insulation to walls, roof space and floorsMaintenance free UPVC energy efficient double glazing with lockable system (where appropriate)Bitmac DrivewayGardens to front and rear topsoiled and seededTimber privacy fencing and walling to boundaries (where applicable)Feature lights to external wallsOutside tap
INTERNAL FEATURES:
Internal walls and ceilings painted along with internal woodworkContemporary skirting, architraves, and internal doors with chrome door furnitureComprehensive range of electrical socketsUSB charging port socket in master bedroom and kitchenConnection sockets for television and telephoneWired for security alarmPre-wired for BT Openreach
KITCHEN
Choice of kitchen doors, worktops and handlesIntegrated electrical appliances to include dishwasher and fridge/freezerBuilt in oven, hob and extractor fan
BATHROOMS, EN-SUITE & CLOAK ROOM
Contemporary white sanitary ware with chrome fittingsThermostatically controlled shower in bathroom and electric shower in en-suiteChrome heated towel radiator in bathroom, en-suite and cloakroomFull heights tiling to shower enclosuresTiled splash backs to sinks and bath area
FLOORING
Choice of laminate wooden floor in lounge and bedroomsStaircase and landing carpetedEntrance hall, kitchen/dining area, utlity room, cloakroom, en-suite and bathroom tiledTiled garden room and sun rooms (where applicable)
HEATING
Oil fired central heating with high efficient condensing oil burnerZoned heating with clock in line with building control regulationsOil tankCast iron wood burning stove
A SAFE HOME
Wired for alarmMains powered smoke alarmMains powered carbon monoxide alarm
PAINTING
Painted moulded skirting boards and architravesWalls and ceilings painted
OTHER
Oak doors with chrome door furnitureExcellent electrical specificationGardens levelled, topsoiled and sown in grass seedNHBC 10 year warranty
All homes come complete with a new turnkey style finish to include: Carpets, Wall & Floor Tiling, Bathroom Suite, Decoration and a choice of Kitchen Doors & Worktops.
DETACHED HOMES
Add a beautiful garden room or Sun Room to create a larger open plan kitchen, dining and living area. Bring the outdoor in and enjoy the extra space for entertaining or just relaxing.
DETACHED GARAGES
Detached Garages are available as an optional extra on most sites.
------------------------------------------------------------------------------------------------------------------------
Thinking of Selling?
FREE VALUATION!
If you are considering the sale of your own property, we are delighted to offer a FREE SALES VALUATION, without obligation of sale. Get in contact today and we will be happy to help & advise you!
(028) 8772 7799 | info@maneely.com
-------------------------------------------------------------------------------------------------------------------------
MISREPRESENTATION CLAUSE
Maneely & Co Ltd gives notice to anyone who may read these particulars as follows. These particulars do not constitute any part of an offer or contract. Any intending purchasers or lessees must satisfy themselves by inspection or otherwise to the correctness of each of the statements contained in these particulars. We cannot guarantee the accuracy or description of any dimensions, texts or photos which also may be taken by a wide camera lens or enhanced by photo shop All dimensions are taken to the nearest 5 inches. Descriptions of the property are inevitably subjective, and the descriptions contained herein are given in good faith as an opinion and not by way of statement of fact. The heating system and electrical appliances have not been tested and we cannot offer any guarantees on their condition.
Property Location
Mortgage Calculator
Multiple Agents
By registering your interest, you acknowledge our Privacy Policy