Contact Agent

Contact Dynes Residential

Contact Dynes Residential

3 Bed Apartment

50C Marlborough Park South

Malone, Belfast, BT9 6HR

monthly £1,500pm
  • Status For Rent
  • Property Type Apartment
  • Available From 09/02/2026
  • Bedrooms 3
  • Receptions 2
  • Rates
    Rate information is for guidance only and may change as sources are updated.
    Inc Rates
  • Heating Gas
  • Furnished Unfurnished
  • EPC Rating C77 / C77
EPC Rating

Property Financials

  • Monthly £1,500pm
  • Rates Inc Rates
  • Lease 12 months

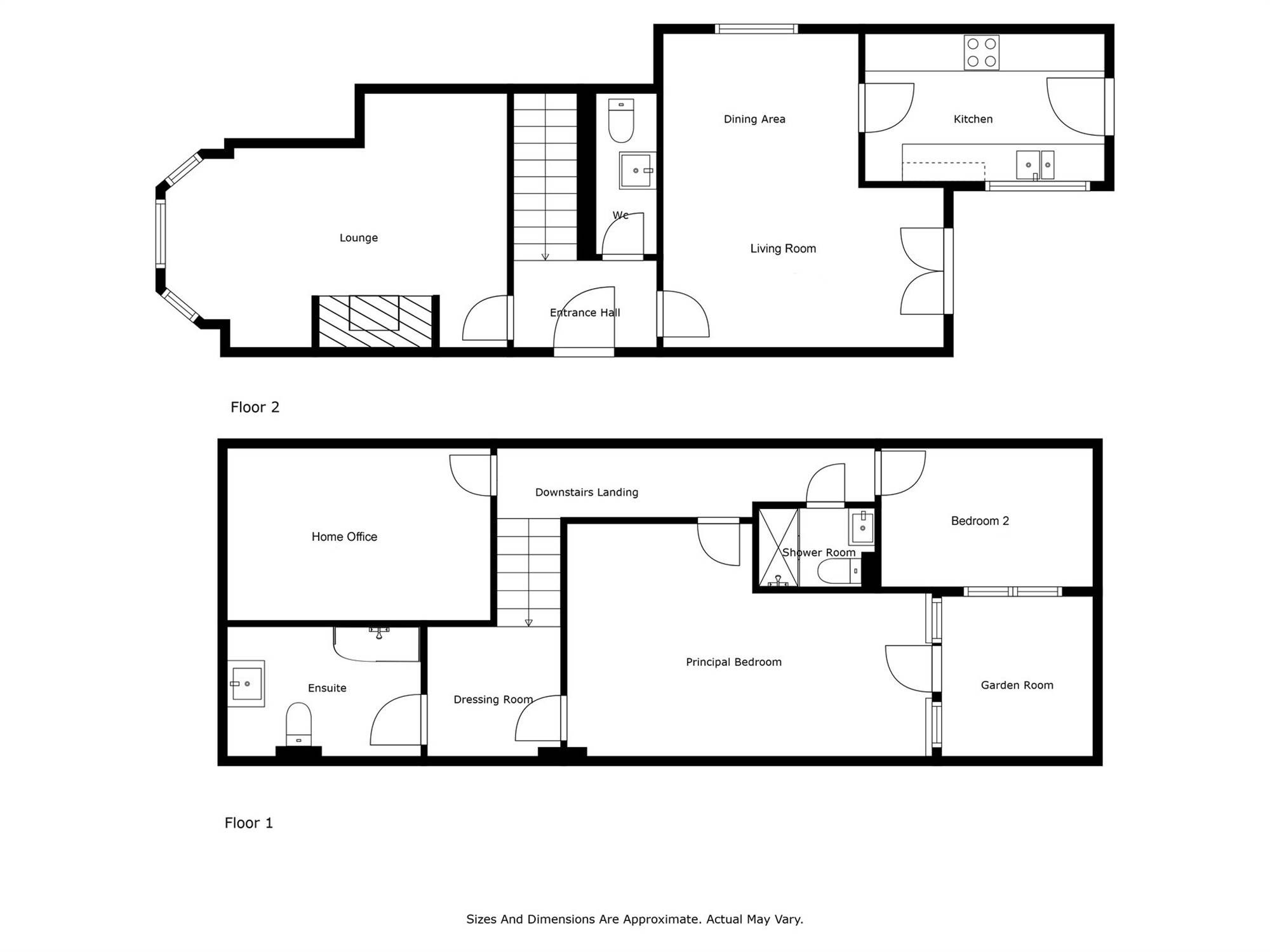
Description

PLEASE NOTE: THIS PROPERTY IS OFFERED UNFURNISHED

This impressive apartment is finished to an exceptional standard throughout and offers spacious, flexible accommodation in a highly sought-after South Belfast location.

The ground floor comprises of a WC, a bright and comfortable lounge, and a second lounge which opens into a dining area. The modern galley-style kitchen is fitted with integrated appliances and offers a sleek, contemporary finish.

On the lower level, the accommodation continues with a generous master bedroom complete with ensuite shower room and a separate dressing room, with access through to a garden room. There is a second well-proportioned bedroom, along with a home office or optional third bedroom, and an additional shower room.

Additional features include gas heating, parking available at the property along with further guest parking, and modern finishes throughout. With its flexible layout and high-quality finish, this is an excellent rental opportunity in a popular and convenient location.

Property Location

Show Map

Contact Agent

Contact Dynes Residential

Contact Dynes Residential

Request More Information
Requesting Info about...
50C Marlborough Park South, Malone, Belfast, BT9 6HR 50C Marlborough Park South, Malone, Belfast, BT9 6HR

By registering your interest, you acknowledge our Privacy Policy