Contact Agent
Contact Quinn Estate Agents (Downpatrick)
4 Bed Detached House
96A Ballynoe Road
Downpatrick, BT30 8AR
price guide
£369,950
- Status For Sale
- Property Type Detached
- Bedrooms 4
- Receptions 2
- Bathrooms 4
-
Stamp Duty
Higher amount applies when purchasing as buy to let or as an additional property£8,498 / £26,995*
Key Features & Description
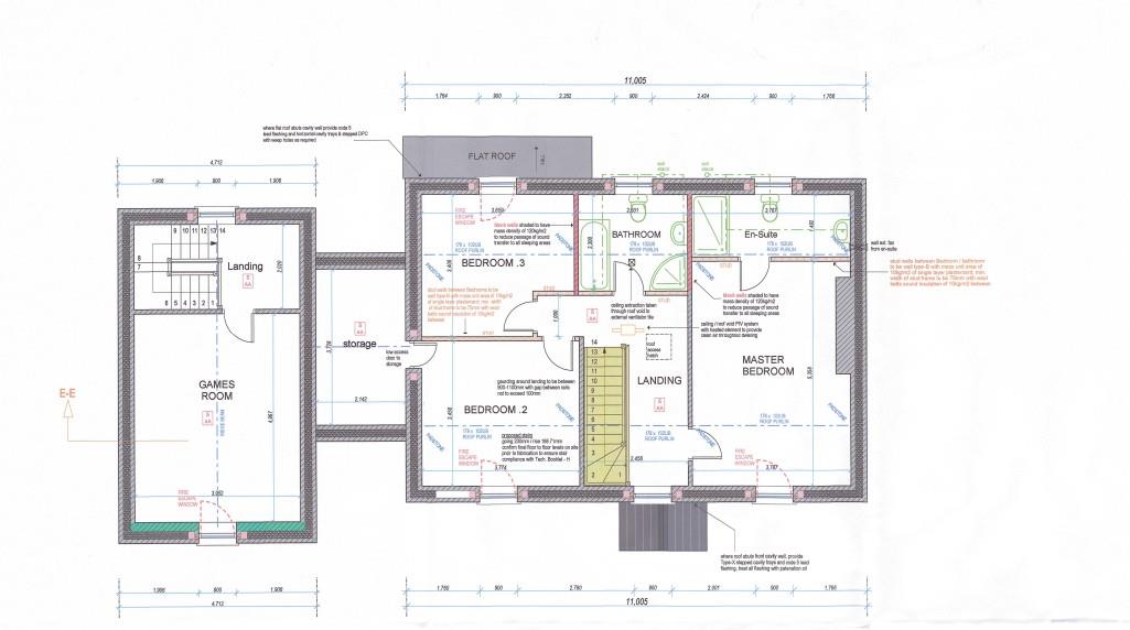
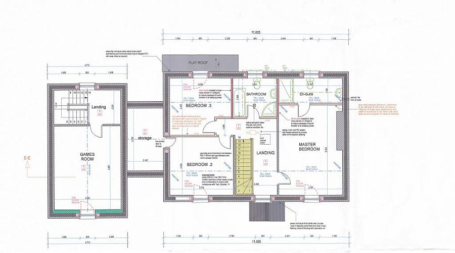
Under Construction - Detached Family Home
Adaptable Accommodation
Lounge
Open Plan Kitchen, Dining & Living Area
Ground Floor Bedroom / Second Reception Room
Utility Room & Ground Floor WC
Garage & First Floor Games Room
Enclosed Rear Garden
Off Road Parking
Subject To Final Building Control Inspection
Description
An excellent opportunity to acquire a newly constructed detached family home set in a convenient yet peaceful location approximately three miles from Downpatrick.
Currently under construction, this property has been thoughtfully designed to provide modern, spacious accommodation ideally suited to family living.
The property will be sold with full Building Control sign off, offering purchasers confidence that the home complies with all current building regulations.
Vendors will install: oil heating, plaster out, paint, install kitchen and bathroom, skirting, doors and architraves. There will NOT be an option to choose finishes. Internal images are for illustrative purposes only and may differ.
An excellent opportunity to acquire a newly constructed detached family home set in a convenient yet peaceful location approximately three miles from Downpatrick.
Currently under construction, this property has been thoughtfully designed to provide modern, spacious accommodation ideally suited to family living.
The property will be sold with full Building Control sign off, offering purchasers confidence that the home complies with all current building regulations.
Vendors will install: oil heating, plaster out, paint, install kitchen and bathroom, skirting, doors and architraves. There will NOT be an option to choose finishes. Internal images are for illustrative purposes only and may differ.
Broadband Speed Availability
Potential Speeds for 96A Ballynoe Road
Max Download
1800
Mbps
Max Upload
300
MbpsThe speeds indicated represent the maximum estimated fixed-line speeds as predicted by Ofcom. Please note that these are estimates, and actual service availability and speeds may differ.
Property Location
Mortgage Calculator
Contact Agent
Contact Quinn Estate Agents (Downpatrick)
Request More Information
Requesting Info about...
96A Ballynoe Road, Downpatrick, BT30 8AR
By registering your interest, you acknowledge our Privacy Policy
By registering your interest, you acknowledge our Privacy Policy