Contact Agent
Contact John Minnis Estate Agents (Donaghadee)
5 Bed Detached House
47 Newtownards Road
Donaghadee, BT21 0PY
offers around
£529,950
Key Features & Description
Charm, Character and Ambiance in Abundance
The Property is Deceptively Spacious with Versatile and Adaptable Accommodation
Well Presented Throughout Leaving Little Left to Do but Move in and Enjoy
Drawing Room with Inglenook Fireplace
o Cast Iron Multi Fuel Burning Stove
Sitting Room
Family Room with Solid Wooden Floor
ouPVC Double Glazed French Doors to Outside and Courtyard
Superb In-Frame Kitchen
A Range of Hand Painted Solid Wooden Units, Quartz Work Surfaces
Large Island Unit
Utility Room
Description
Situated on the outskirts of the picturesque coastal town of Donaghadee, this exceptional detached family home offers charm, character and spacious, flexible accommodation. Finished to an excellent standard throughout, it is ready to move into and enjoy.
The split-level layout includes a drawing room with Inglenook fireplace and multi-fuel stove, a sitting room, and a superb in-frame hand-painted kitchen with solid wooden units and quartz worktops, open plan to a casual dining/family area. Two bedrooms, including a primary with en suite, plus a cloakroom with WC complete the ground floor. The lower level features a family room with wooden flooring and French doors to the courtyard, three further bedrooms-one with an en suite wash room-and an annexe with open plan living/kitchen area. A five-piece bathroom and an office with solid oak flooring add further versatility.
The mature landscaped gardens are equally impressive, with lawns, colourful planting, trees, shrubs, extensive paved terraces, pathways, a summer house and large storage shed. Two loose-stone parking areas provide ample space for cars, boats or caravans, and a timber decked terrace offers an additional seating area. The property also benefits from oil-fired central heating, uPVC double glazing, a utility room and a butler´s pantry.
As part of our obligations under the Money Laundering, Terrorist Financing and Transfer of Funds (Information on the Payer) Regulations 2017, all Estate Agents are required to verify the identity of purchasers involved in a property transaction.
To comply with these obligations, all purchasers will be required to complete Customer Due Diligence (AML) identity checks. These checks are carried out on our behalf by our trusted third-party provider, Thirdfort.
A charge will apply of £20 + VAT per purchaser.
Situated on the outskirts of the picturesque coastal town of Donaghadee, this exceptional detached family home offers charm, character and spacious, flexible accommodation. Finished to an excellent standard throughout, it is ready to move into and enjoy.
The split-level layout includes a drawing room with Inglenook fireplace and multi-fuel stove, a sitting room, and a superb in-frame hand-painted kitchen with solid wooden units and quartz worktops, open plan to a casual dining/family area. Two bedrooms, including a primary with en suite, plus a cloakroom with WC complete the ground floor. The lower level features a family room with wooden flooring and French doors to the courtyard, three further bedrooms-one with an en suite wash room-and an annexe with open plan living/kitchen area. A five-piece bathroom and an office with solid oak flooring add further versatility.
The mature landscaped gardens are equally impressive, with lawns, colourful planting, trees, shrubs, extensive paved terraces, pathways, a summer house and large storage shed. Two loose-stone parking areas provide ample space for cars, boats or caravans, and a timber decked terrace offers an additional seating area. The property also benefits from oil-fired central heating, uPVC double glazing, a utility room and a butler´s pantry.
As part of our obligations under the Money Laundering, Terrorist Financing and Transfer of Funds (Information on the Payer) Regulations 2017, all Estate Agents are required to verify the identity of purchasers involved in a property transaction.
To comply with these obligations, all purchasers will be required to complete Customer Due Diligence (AML) identity checks. These checks are carried out on our behalf by our trusted third-party provider, Thirdfort.
A charge will apply of £20 + VAT per purchaser.
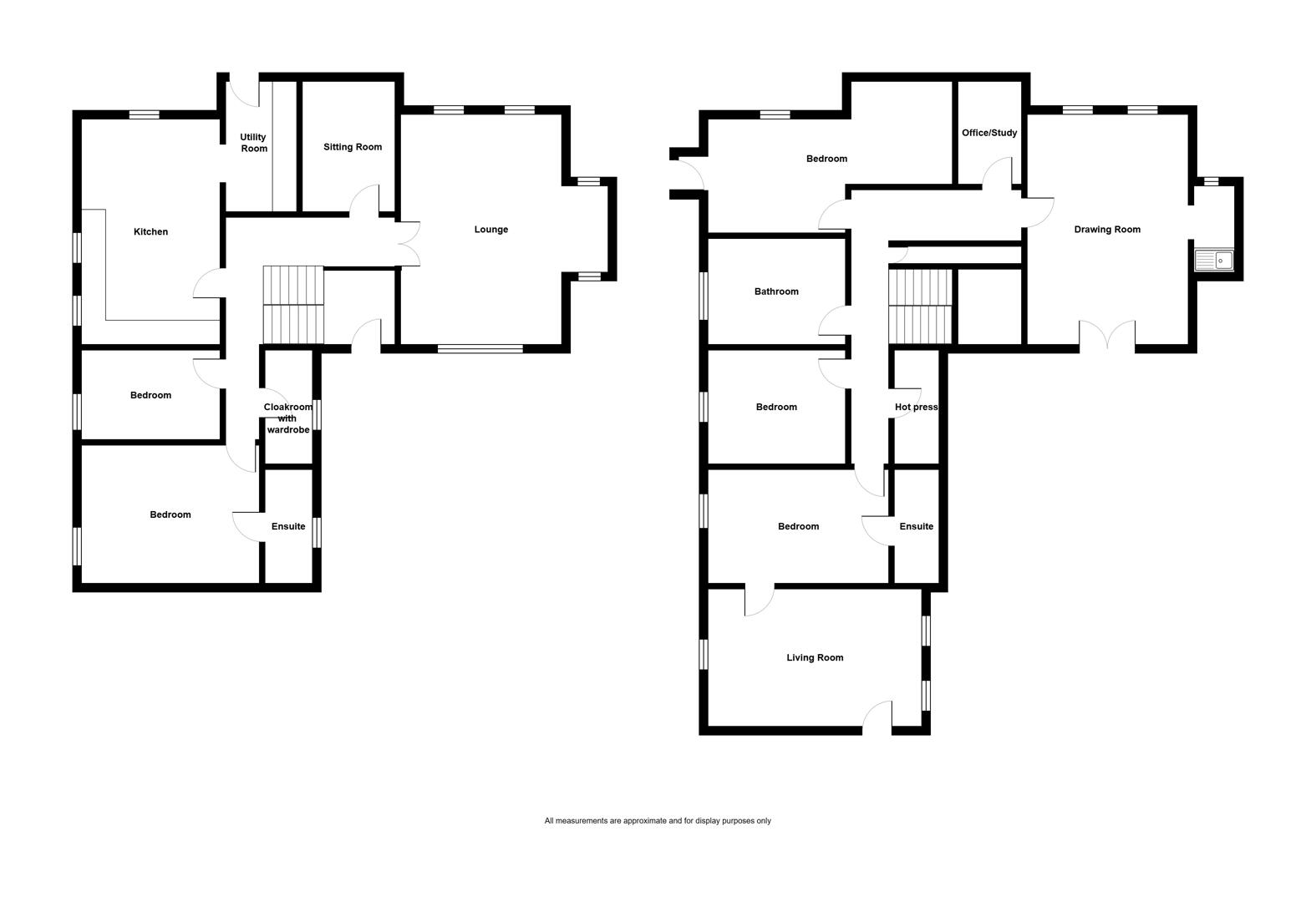
Rooms
GROUND FLOOR
Entrance
uPVC double glazed front door with uPVC double glazed side panel to reception hall.
Reception Hall
Fully tiled floor, stairs to ground floor, stairs to lower level, solid oak wooden floor.
Drawing Room 19´7" X 14´ (5.79m X 4.27m)
French doors with glazed and bevelled insets from reception hall, cast iron multi fuel burning stove, Inglenook fireplace with brick surround, slate hearth, fully tiled floor.
Sitting Room 10´10" X 10´ (3.05m X 3.05m)
Fully tiled floor.
Superb Kitchen Open Plan to Dining Area 19´7" X 11´8" (5.79m X 3.35m)
at widest points
Range of high and low level in-frame hand painted solid wooden units, quartz work surfaces, double bowl sink unit with mixer tap, space for cooker range, tiled splashback, extractor fan above, recess and plumbed for ice dispensing fridge freezer, integrated dishwasher, dresser with storage cupboard, built-in shelving and quartz worktop, large island unit with additional storage, quartz worktop, breakfast bar, glass display cabinets, fully tiled floor, part tiled walls.
Range of high and low level in-frame hand painted solid wooden units, quartz work surfaces, double bowl sink unit with mixer tap, space for cooker range, tiled splashback, extractor fan above, recess and plumbed for ice dispensing fridge freezer, integrated dishwasher, dresser with storage cupboard, built-in shelving and quartz worktop, large island unit with additional storage, quartz worktop, breakfast bar, glass display cabinets, fully tiled floor, part tiled walls.
Utility Room
Range of high and low level hand painted solid wooden units, quartz work surfaces, sink unit with mixer tap, plumbed for washing machine, space for tumble dryer, fully tiled floor, part tiled walls, glass display cabinets with built-in lighting, uPVC double glazed door to outside.
Bedroom One 15´2" X 11´9" (4.57m X 3.35m)
at widest points
Extensive range of built-in wardrobes, fully tiled floor.
Extensive range of built-in wardrobes, fully tiled floor.
En Suite Shower Room
Three piece suite comprising built-in fully tiled shower cubicle, pedestal wash hand basin, mixer tap, low flush WC, fully tiled floor, fully tiled walls, extractor fan.
Bedroom Five 10´2" X 7´9" (3.05m X 2.13m)
at widest points
Painted wooden floorboards.
Painted wooden floorboards.
Cloakroom with WC
Two piece white suite comprising low flush WC, pedestal wash hand basin, mixer tap, fully tiled floor, part tongue and groove walls, access to roofspace.
Stairs to Lower Level
LOWER LEVEL
Reception Hall
Fully tiled floor, storage cupboard, shelved hotpress with pressurised water system.
Family Room 19´4" X 13´8" (5.79m X 3.96m)
at widest points
Solid wooden floor, uPVC double glazed French doors to outside.
Solid wooden floor, uPVC double glazed French doors to outside.
Butlers Pantry
Single bowl single drainer stainless steel sink unit with mixer tap, under counter fridge, solid oak floor, integrated wine rack and shelving
Bedroom Two 21´2" X 9´8" (6.40m X 2.74m)
at widest points
Solid oak wooden floor, uPVC double glazed door to outside.
Solid oak wooden floor, uPVC double glazed door to outside.
Bedroom Three 11´9" X 9´9" (3.35m X 2.74m)
Fully tiled floor, picture rail.
Bedroom Four 15´3" X 9´7" (4.57m X 2.74m)
Solid wood painted floorboards, picture rail.
En Suite Wash Room
Two piece white suite comprising low flush WC, pedestal wash hand basin, built in wardrobe, solid wood painted floorboards, part tiled walls, picture rail.
Annexe Living Area Open Plan to Kitchen Area 18´ X 11´9" (5.49m X 3.35m)
at widest points
Laminate wood effect floor, attractive decorative period cast iron fireplace, tiled inset, slate hearth.
Laminate wood effect floor, attractive decorative period cast iron fireplace, tiled inset, slate hearth.
Kitchen Area
Small Belfast Sink, mixer tap, tiled work surfaces, plumbed for washing machine, space for fridge, glass display cabinets with built-in lighting, access to roofspace.
Office 6´ X 8´10" (1.83m X 2.44m)
into cabinets at widest points
Solid oak wooden floor, range of cabinetry to include shelving and cupboards.
Solid oak wooden floor, range of cabinetry to include shelving and cupboards.
Bathroom
Five piece suite comprising panelled bath with mixer tap, separate built-in fully tiled shower cubicle with Bristan shower unit, pedestal wash hand basin, mixer tap, tiled splashback, low flush WC, bidet, fully tiled floor, painted wood panelled walls, extractor fan.
OUTSIDE
Beautifully presented mature landscaped gardens surrounding the property with lawns, vast array of colourful flowers, plants, trees and shrubs, extensive paved terrace areas and pathways, driveway leading to two parking areas, one at the front in loose stones and one at the rear in loose stones with space for cars, caravans, boats, horse boxes, etc, timber decked terrace and sitting area.
Summer House
With solid wooden floors and light.
Large Storage Shed
With light and power.
Boiler House
Oil fired boiler in boiler house.
uPVC oil tank.
uPVC oil tank.
Heading out of Donaghadee on Bridge Street, turn left onto Newtownards Road. Continue on for approx a mile and No 47 will be on the right.
Broadband Speed Availability
Potential Speeds for 47 Newtownards Road
Max Download
1800
Mbps
Max Upload
220
MbpsThe speeds indicated represent the maximum estimated fixed-line speeds as predicted by Ofcom. Please note that these are estimates, and actual service availability and speeds may differ.
Property Location
Mortgage Calculator
Contact Agent
Contact John Minnis Estate Agents (Donaghadee)
Request More Information
Requesting Info about...
47 Newtownards Road, Donaghadee, BT21 0PY
By registering your interest, you acknowledge our Privacy Policy
By registering your interest, you acknowledge our Privacy Policy