Land
Ballygroogan Park, Land At Immediately North Of Junction Of Pomeroy Road & Kilcronagh Road
Cookstown, BT80 9HQ
price
£750,000
- Status For Sale
- Property Type Land
-
Stamp Duty
Higher amount applies when purchasing as buy to let or as an additional property£27,500 / £65,000*
Key Features & Description
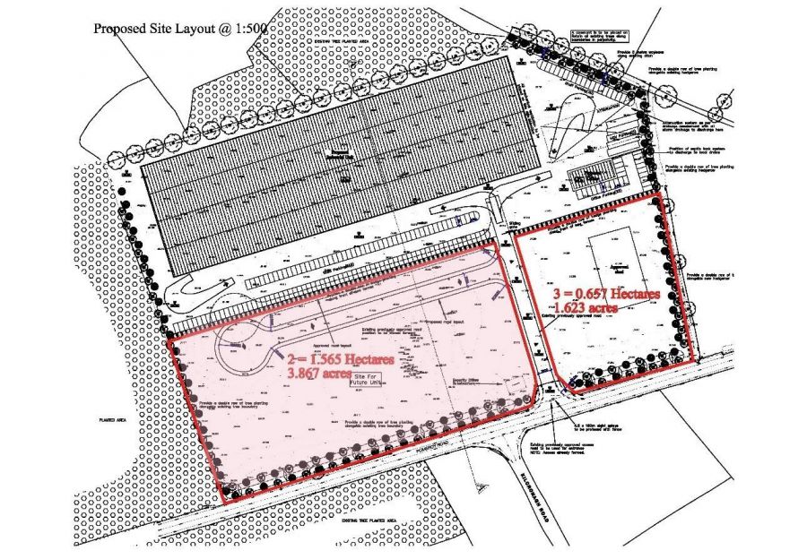
3.87 acres (excluding road access)
Site suitable for Industrial (STPP) within Ballygroogan Park (Name assigned by Cookstown District in 2014)
A new road will be constructed down the side of the site to provide access
Contact Connor Harte Estate Agents & Valuer today to arrange a viewing on 028 8676 3265
Follow Us on Facebook & Instagram for all the latest property listings.
Thinking of Selling? - FREE VALUATION
If you are considering the sale of your own property, we are delighted to offer a FREE sales valuation,
with no obligation to sell. Get in contact today - we're happy to help and advise you!
T: 028 8676 3265 or E: info@connorharte.com
PROPERTIES REQUIRED ACROSS ALL AREAS: We're here to help you every step of the way!
MISREPRESENTATION CLAUSE
Connor Harte Ltd gives notice to anyone who may read these particulars as follows: These particulars do not constitute any part of an offer or contract. Any intending purchaser must satisfy themselves by inspection or otherwise as to the correctness of each of the statements contained in these particulars. We cannot guarantee the accuracy or description of any dimensions, texts, or photos, which may also be taken by a wide camera lens. All dimensions are taken to the nearest 5 inches. Description of the property are inevitably subjective and are given in good faith as an opinion and not by way of statement of fact. The heating system and electrical appliances have not been tested and we cannot offer any guarantees on their condition.
Let us help you make your next move with confidence!
Thinking of Selling? - FREE VALUATION
If you are considering the sale of your own property, we are delighted to offer a FREE sales valuation,
with no obligation to sell. Get in contact today - we're happy to help and advise you!
T: 028 8676 3265 or E: info@connorharte.com
PROPERTIES REQUIRED ACROSS ALL AREAS: We're here to help you every step of the way!
MISREPRESENTATION CLAUSE
Connor Harte Ltd gives notice to anyone who may read these particulars as follows: These particulars do not constitute any part of an offer or contract. Any intending purchaser must satisfy themselves by inspection or otherwise as to the correctness of each of the statements contained in these particulars. We cannot guarantee the accuracy or description of any dimensions, texts, or photos, which may also be taken by a wide camera lens. All dimensions are taken to the nearest 5 inches. Description of the property are inevitably subjective and are given in good faith as an opinion and not by way of statement of fact. The heating system and electrical appliances have not been tested and we cannot offer any guarantees on their condition.
Let us help you make your next move with confidence!
Description
We are delighted to have been appointed as agents to this excellent development opportunity (STPP) located on the Pomeroy Road, across from Kilcronagh Road. Ballygroogan Park (Name assigned by Cookstown District in 2014). This excellent site is offered for sale subject to planning permission for industrial development. A qualified engineer has been engaged by the current owners and ground conditions are suitable for proposed building works. A drainage design has been completed for the site.
Project Status - A qualified engineer has been engaged by the current owners and ground conditions are suitable for proposed building works. A drainage design has been completed for the site.
Previous history on the entire field to include this site include:
History dates back as follows:
I/1985/0333- Workshop
I/1993/0437/0 - Erection of Engineering Factory
I/1995/0088/F - Engineering Factory
I/2001/01770/O- Proposed Business Park to Accommodate Light Industrial Use (Class 4) with Associated Works
I/2004/0362/F- Advanced road construction in conjunction with planning approval
I/2001/0177/O
I/2008/0416/F- Proposed light industrial unit for class 4 use, in conjunction with approved road construction Ref: I/2004/0362/F
I/2013/0379/O- Proposed security office at entrance to approved site.
The first commercial permission being in 1985. Subsequent approvals demonstrate a APPLICATION NUMBER - LA09/2023/0635/F
An email of comfort is available from the current Architect confirming;
With reference to the Planning for the site, a copy is available with the case officer report that was presented to the Planning Committee.
The approval received was on lands that was part of an originally approved Industrial Park. No buildings approved where the new approval has been granted and MUDC Planning were satisfied that the industrial use has been established on the site.
We are delighted to have been appointed as agents to this excellent development opportunity (STPP) located on the Pomeroy Road, across from Kilcronagh Road. Ballygroogan Park (Name assigned by Cookstown District in 2014). This excellent site is offered for sale subject to planning permission for industrial development. A qualified engineer has been engaged by the current owners and ground conditions are suitable for proposed building works. A drainage design has been completed for the site.
Project Status - A qualified engineer has been engaged by the current owners and ground conditions are suitable for proposed building works. A drainage design has been completed for the site.
Previous history on the entire field to include this site include:
History dates back as follows:
I/1985/0333- Workshop
I/1993/0437/0 - Erection of Engineering Factory
I/1995/0088/F - Engineering Factory
I/2001/01770/O- Proposed Business Park to Accommodate Light Industrial Use (Class 4) with Associated Works
I/2004/0362/F- Advanced road construction in conjunction with planning approval
I/2001/0177/O
I/2008/0416/F- Proposed light industrial unit for class 4 use, in conjunction with approved road construction Ref: I/2004/0362/F
I/2013/0379/O- Proposed security office at entrance to approved site.
The first commercial permission being in 1985. Subsequent approvals demonstrate a APPLICATION NUMBER - LA09/2023/0635/F
An email of comfort is available from the current Architect confirming;
With reference to the Planning for the site, a copy is available with the case officer report that was presented to the Planning Committee.
The approval received was on lands that was part of an originally approved Industrial Park. No buildings approved where the new approval has been granted and MUDC Planning were satisfied that the industrial use has been established on the site.
Property Location
Mortgage Calculator
Contact Agent
Contact Connor Harte
Request More Information
Requesting Info about...
Ballygroogan Park, Land At Immediately North Of Junction Of Pomeroy Road & Kilcronagh Road, Cookstown, BT80 9HQ
By registering your interest, you acknowledge our Privacy Policy
By registering your interest, you acknowledge our Privacy Policy