2 Bed Semi-Detached House
15 Chesham Grove
Cregagh/ Ravenhill, Belfast, BT6 8GU
offers in region of
£179,950
Key Features & Description
Semi detached house in quiet cu-de-sac
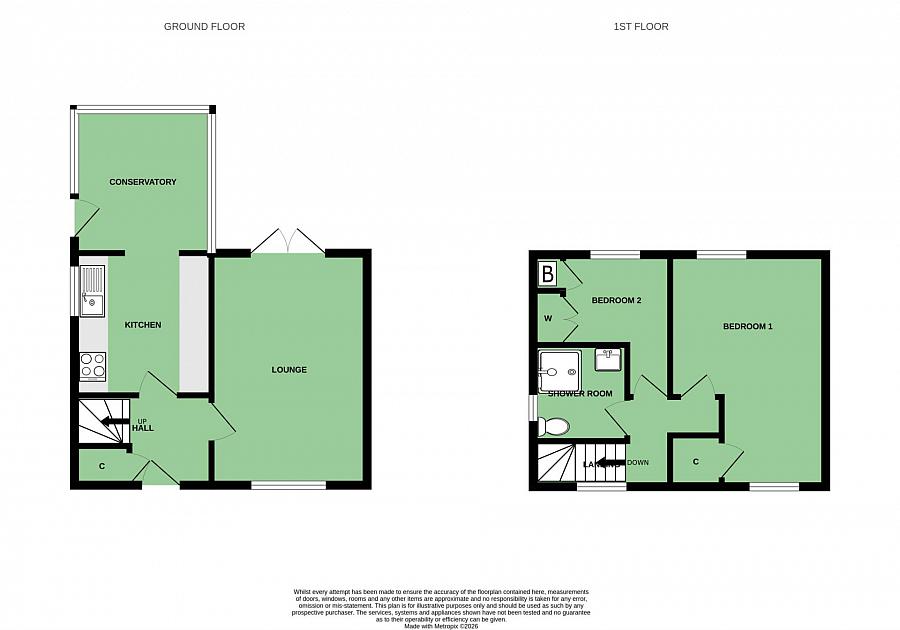
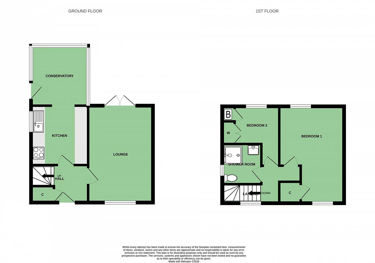
Entrance hall with laminate floor
Living room with French doors to garden
Contemporary kitchen in navy finish with integrated appliances
Sun room/ utility area
2 well proportioned bedrooms
Modern shower room
UPVC framed double glazing and mains gas central heating
Gardens to the side and rear
Planning permission for two storey rear extension
Description
Charming Two-Bedroom Semi-Detached Home in Quiet Cul-de-Sac
Situated in a peaceful cul-de-sac location, this attractive semi-detached home offers well-presented accommodation ideal for first-time buyers, downsizers, or investors.
The property is entered via an entrance hall with stylish laminate flooring, leading through to a comfortable living room featuring French doors that open directly onto the garden, creating a bright and welcoming living space.
The contemporary kitchen is finished in a striking navy design and comes complete with integrated appliances, offering both practicality and modern style.
Upstairs, there are two well-proportioned bedrooms along with a modern shower room fitted with quality fixtures.
Externally, the property offers parking to the front, with gardens extending to the side and rear providing pleasant outdoor space for relaxing or entertaining.
Early viewing is highly recommended to fully appreciate the accommodation and location on offer.
(Planning permission for two storey rear extension has been approved and is currently valid - contact Pooler Estate Agents for further details.)
Entrance hall
Storage under stairs and click laminate floor
Living room - 15'3" (4.65m) x 9'10" (3m)
Modern light fitting, click laminate floor and French doors to garden
Kitchen - 9'2" (2.79m) x 8'11" (2.72m)
Recently fitted range of high and low level fitted units, integrated oven, ceramic hob with glass splashback, black extractor canopy, black bowl and a half sink with adjustable tap, integrated under counter fridge and freezer, integrated dishwasher, recessed spotlights, ceramic tiled floor, and open to..
Sunroom/utility space - 8'4" (2.54m) x 8'1" (2.46m)
Low level units, plumbed for washing machine, space for tumble dryer and ceramic tiled floor
First floor
Bedroom 1 - 15'3" (4.65m) x 9'10" (3m) Max
Bedroom 2 - 9'4" (2.84m) Max x 9'1" (2.77m) Max
Built in cupboard and gas boiler in cupboard
Shower room - 6'3" (1.91m) Max x 6'2" (1.88m)
Shower cubicle with thermostatic shower and sliding door, wash hand basin in vanity unit, W.C., timber laminate floor, chrome towel rail radiator, P.V.C. panelled ceiling and extractor fan
Outside
Frontage in tarmac, paving and small stones to side, and rear garden in paving, brick paving, lawn (in need of seeding), trees and shrub beds
what3words /// slime.bleak.award
Notice
Please note we have not tested any apparatus, fixtures, fittings, or services. Interested parties must undertake their own investigation into the working order of these items. All measurements are approximate and photographs provided for guidance only.
Rates Payable
Belfast City Council, For Period April 2025 To March 2026 £1,055.00
Utilities
Electric: Unknown
Gas: Unknown
Water: Unknown
Sewerage: Unknown
Broadband: Unknown
Telephone: Unknown
Other Items
Heating: Gas Central Heating
Garden/Outside Space: Yes
Parking: No
Garage: No
Charming Two-Bedroom Semi-Detached Home in Quiet Cul-de-Sac
Situated in a peaceful cul-de-sac location, this attractive semi-detached home offers well-presented accommodation ideal for first-time buyers, downsizers, or investors.
The property is entered via an entrance hall with stylish laminate flooring, leading through to a comfortable living room featuring French doors that open directly onto the garden, creating a bright and welcoming living space.
The contemporary kitchen is finished in a striking navy design and comes complete with integrated appliances, offering both practicality and modern style.
Upstairs, there are two well-proportioned bedrooms along with a modern shower room fitted with quality fixtures.
Externally, the property offers parking to the front, with gardens extending to the side and rear providing pleasant outdoor space for relaxing or entertaining.
Early viewing is highly recommended to fully appreciate the accommodation and location on offer.
(Planning permission for two storey rear extension has been approved and is currently valid - contact Pooler Estate Agents for further details.)
Entrance hall
Storage under stairs and click laminate floor
Living room - 15'3" (4.65m) x 9'10" (3m)
Modern light fitting, click laminate floor and French doors to garden
Kitchen - 9'2" (2.79m) x 8'11" (2.72m)
Recently fitted range of high and low level fitted units, integrated oven, ceramic hob with glass splashback, black extractor canopy, black bowl and a half sink with adjustable tap, integrated under counter fridge and freezer, integrated dishwasher, recessed spotlights, ceramic tiled floor, and open to..
Sunroom/utility space - 8'4" (2.54m) x 8'1" (2.46m)
Low level units, plumbed for washing machine, space for tumble dryer and ceramic tiled floor
First floor
Bedroom 1 - 15'3" (4.65m) x 9'10" (3m) Max
Bedroom 2 - 9'4" (2.84m) Max x 9'1" (2.77m) Max
Built in cupboard and gas boiler in cupboard
Shower room - 6'3" (1.91m) Max x 6'2" (1.88m)
Shower cubicle with thermostatic shower and sliding door, wash hand basin in vanity unit, W.C., timber laminate floor, chrome towel rail radiator, P.V.C. panelled ceiling and extractor fan
Outside
Frontage in tarmac, paving and small stones to side, and rear garden in paving, brick paving, lawn (in need of seeding), trees and shrub beds
what3words /// slime.bleak.award
Notice
Please note we have not tested any apparatus, fixtures, fittings, or services. Interested parties must undertake their own investigation into the working order of these items. All measurements are approximate and photographs provided for guidance only.
Rates Payable
Belfast City Council, For Period April 2025 To March 2026 £1,055.00
Utilities
Electric: Unknown
Gas: Unknown
Water: Unknown
Sewerage: Unknown
Broadband: Unknown
Telephone: Unknown
Other Items
Heating: Gas Central Heating
Garden/Outside Space: Yes
Parking: No
Garage: No
Broadband Speed Availability
Potential Speeds for 15 Chesham Grove
Max Download
1800
Mbps
Max Upload
220
MbpsThe speeds indicated represent the maximum estimated fixed-line speeds as predicted by Ofcom. Please note that these are estimates, and actual service availability and speeds may differ.
Property Location
Mortgage Calculator
Contact Agent
Contact Pooler Estate Agents
Request More Information
Requesting Info about...
15 Chesham Grove, Cregagh/ Ravenhill, Belfast, BT6 8GU
By registering your interest, you acknowledge our Privacy Policy
By registering your interest, you acknowledge our Privacy Policy