Contact Agent

Contact Homes Independent

Contact Homes Independent

2 Bed Terrace House

34 Casement Street

Ballymena, BT42 4BY

offers around £85,000
  • Status For Sale
  • Property Type Terrace
  • Bedrooms 2
  • Receptions 2
  • Heating OFCH
  • EPC Rating D56 / B82
  • Stamp Duty
    Higher amount applies when purchasing as buy to let or as an additional property
    £0 / £4,250*
  • Typical Mortgage
    Click price to use our mortgage calculator
EPC Rating

Key Features & Description

Mid-terrace house
Living room
Dining room off living room
Kitchen with fitted units
Utility room
First floor bathroom
Separate WC on first floor
Oil fired central heating system
PVC double glazed windows
Hardwood front and rear doors
On-street parking at front of property
Enclosed concrete yard to rear
Outbuilding to rear
Walking distance to local amenities
Convenient to local Schools
Easy access to the A26 and M2 for commuters
Approximate date of construction: 1910
Tenure: Freehold
Estimated Domestic Rate Bill: £675.00
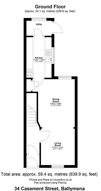
Total area: approx. 59.4 sq. metre (639.9 sq. feet)
Description
Homes Independent are pleased to bring to the market 34 Casement Street, Ballymena, a two-bedroom mid-terrace property offering well-laid-out accommodation ideal for first-time buyers or investors. The property comprises an open-plan living/dining room leading through to a kitchen with a separate utility room, along with a first-floor bathroom and separate WC. Further enhancing the property is an outbuilding to the rear, providing excellent additional storage or potential workspace. Conveniently located within walking distance of Ballymena town centre and a range of local amenities, this property represents a fantastic opportunity. Contact Homes Independent today to arrange a viewing.

Rooms

ENTRANCE PORCH: With hardwood front door with glazed panes. Laminated wooden flooring. Glazed door to entrance hall.
ENTRANCE HALL: With staircase to first floor. Laminated wooden flooring.
LIVING ROOM: 8' 11" X 8' 4" (2.73m X 2.54m) With laminated wooden flooring. Open plan to dining room.
DINING ROOM: 11' 10" X 9' 5" (3.60m X 2.88m) With laminated wooden flooring. Under stair storage cupboard.
KITCHEN: 9' 12" X 6' 2" (3.04m X 1.89m) With a range of eye and low-level fitted units, stainless-steel sink unit and drainer with stainless-steel mixer tap. Space for four ring electric hob and oven with stainless-steel extractor fan over. Space for fridge-freezer. Cutlery drawers.
UTILITY ROOM: With fitted units. Plumbed for washing machine. Hardwood door to rear.
LANDING: With access to loft. Hot-press with shelved storage.
BEDROOM (1): 15' 6" X 11' 5" (4.73m X 3.47m) With built-in storage cupboards.
BEDROOM (2): 10' 4" X 7' 6" (3.15m X 2.29m) With built-in storage cupboard.
CLOAKROOM: With LFWC.
BATHROOM: With WHB and panelled bath with shower over. Built-in storage cupboard. Access to loft.
With on-street parking at front of property. Enclosed concrete yard to rear. Outbuilding to rear. Outside tap.

Broadband Speed Availability

Ultrafast

Potential Speeds for 34 Casement Street

Max Download
1800
Mbps
Max Upload
220
Mbps
The speeds indicated represent the maximum estimated fixed-line speeds as predicted by Ofcom. Please note that these are estimates, and actual service availability and speeds may differ.

Property Location

Show Map

Mortgage Calculator

Disclaimer: The following calculations act as a guide only, and are based on a typical repayment mortgage model. Financial decisions should not be made based on these calculations and accuracy is not guaranteed. Always seek professional advice before making any financial decisions.

Directions

Casement Street is located off Larne Street, Ballymena.

Contact Agent

Contact Homes Independent

Contact Homes Independent

Request More Information
Requesting Info about...
34 Casement Street, Ballymena, BT42 4BY 34 Casement Street, Ballymena, BT42 4BY

By registering your interest, you acknowledge our Privacy Policy
Ask Holmes
Ask Holmes
Let's find your next home

Are you sure you want to reset the chat?

Checking API...