3 Bed Terrace House
4 Clareville Avenue
Ballyclare, BT39 9DN
per month
£795pm
Key Features & Description
Immaculately Presented Mid Terrace Home
Three Well Proportioned Bedrooms
Lounge
Kitchen With Informal Dining Area
Modern Fitted Kitchen
Deluxe Bathroom
Gas Heating; PVC Double Glazing
Low Maintenance Gardens
Convenient Location
No Pets; No Smokers
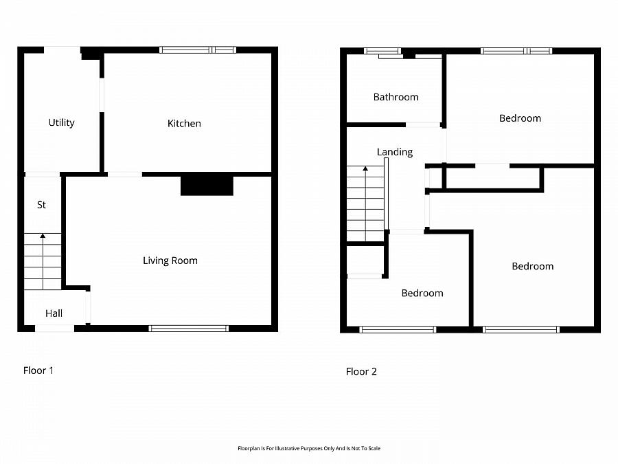
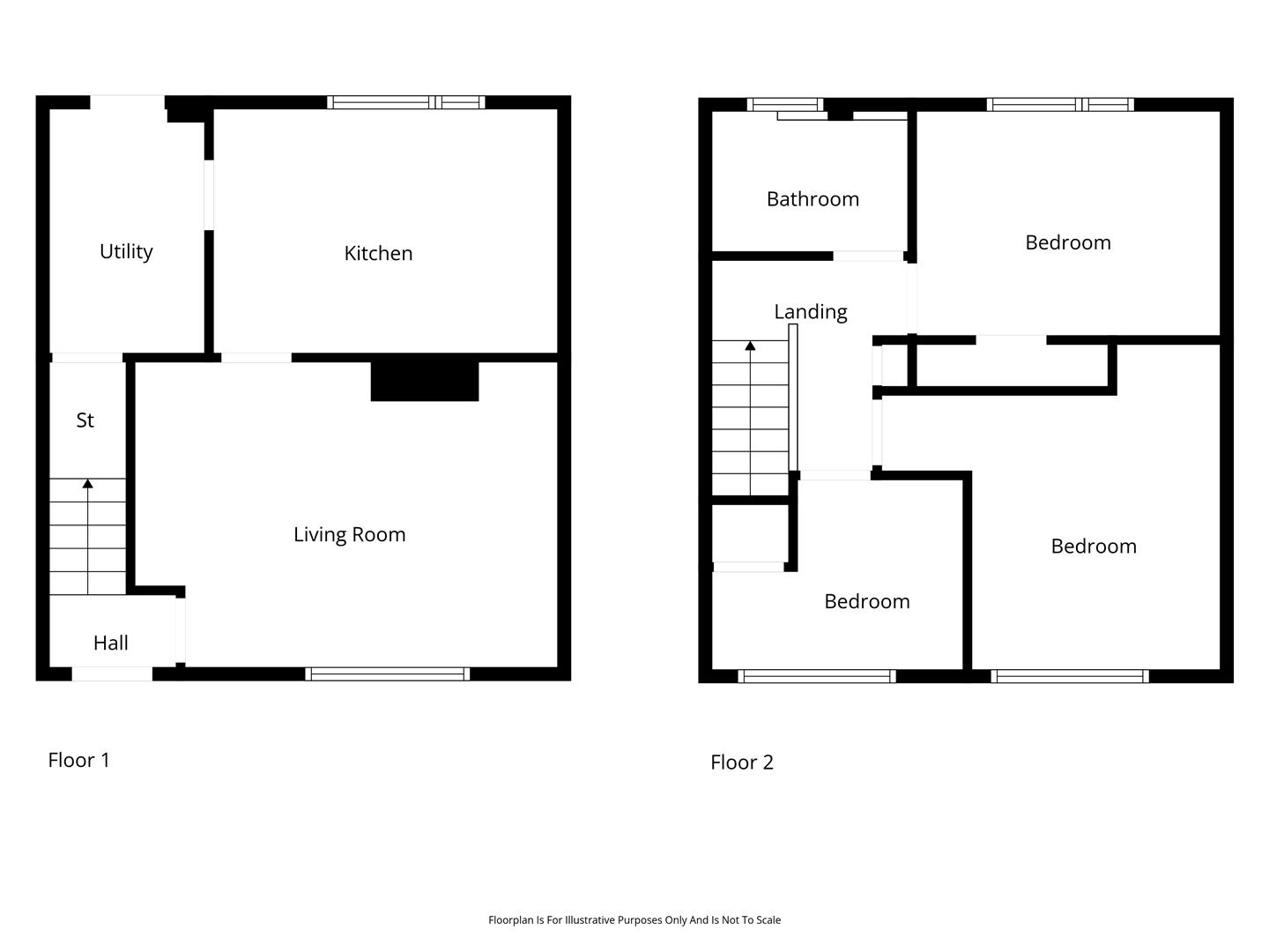
Description
Immaculately presented, three bedroom, mid terrace property, conveniently situated off Grange Drive, Doagh Road, Ballyclare.
The property comprises entrance hall, lounge, modern fitted kitchen with informal dining area, rear hall, three well proportioned first floor bedrooms, and deluxe bathroom with contemporary, white three piece suite.
Externally, the property enjoys low maintenance, enclosed gardens front and rear.
Other attributes include gas fired central heating and PVC double glazing.
Early viewing strongly recommended to avoid disappointment.
Immaculately presented, three bedroom, mid terrace property, conveniently situated off Grange Drive, Doagh Road, Ballyclare.
The property comprises entrance hall, lounge, modern fitted kitchen with informal dining area, rear hall, three well proportioned first floor bedrooms, and deluxe bathroom with contemporary, white three piece suite.
Externally, the property enjoys low maintenance, enclosed gardens front and rear.
Other attributes include gas fired central heating and PVC double glazing.
Early viewing strongly recommended to avoid disappointment.
Rooms
TO ARRANGE A VIEWING PLEASE SEE INSTRUCTIONS BELOW
If you would like to arrange a viewing of this property, please answer the following questions and send your reply to office@colingrahamresidential.com:
Property Address You Wish To View:
Applicant Name(s):
Contact Number:
Email Address:
Current Address:
Are you renting this property, living with family, or do you own this property:
Notice period to be given (if applicable):
Date of birth:
Number of children living with you and their ages:
Employer´s name:
Length of time with current employer:
Job Title:
Are you in full time employment with an annual household income of at least 30 times the monthly rental amount?
Are you able to provide a guarantor who has an annual income of 36 times the monthly rental amount?
Are you currently receiving any DHSS payments?
Are you a smoker?
Do you have any pets?
Will anyone else be living in the property with you?
Property Address You Wish To View:
Applicant Name(s):
Contact Number:
Email Address:
Current Address:
Are you renting this property, living with family, or do you own this property:
Notice period to be given (if applicable):
Date of birth:
Number of children living with you and their ages:
Employer´s name:
Length of time with current employer:
Job Title:
Are you in full time employment with an annual household income of at least 30 times the monthly rental amount?
Are you able to provide a guarantor who has an annual income of 36 times the monthly rental amount?
Are you currently receiving any DHSS payments?
Are you a smoker?
Do you have any pets?
Will anyone else be living in the property with you?
Broadband Speed Availability
Potential Speeds for 4 Clareville Avenue
Max Download
1800
Mbps
Max Upload
220
MbpsThe speeds indicated represent the maximum estimated fixed-line speeds as predicted by Ofcom. Please note that these are estimates, and actual service availability and speeds may differ.
Property Location
Contact Agent
Contact Colin Graham Residential
Request More Information
Requesting Info about...
4 Clareville Avenue, Ballyclare, BT39 9DN
By registering your interest, you acknowledge our Privacy Policy
By registering your interest, you acknowledge our Privacy Policy