Contact Agent
Contact Templeton Robinson (Ballyhackamore)
4 Bed Terrace House
8 Ardenlee Place
Ravenhill, Belfast, BT6 8QS
offers over
£275,000
Key Features & Description
Beautifully presented three storey mid townhouse
Quiet cul de sac location within popular residential development
Spacious lounge with casual dining area
Modern kitchen with centre island and free standing larder
Ground floor utility room with access to driveway
Three second floor bedrooms, principal with ensuite
Ground floor 4th bed/ study with access to garden
Family bathroom/First floor WC
Driveway parking leading to integral garage
Gas central heating/uPVC Double glazing
New uPVC Soffits and Fascia boards
Private and enclosed garden with mature trees and artificial lawn
Within walking distance of Ormeau Road and its array of restaurants and independent shops
A short commute into Belfast city centre, ideal for young professionals
Description
This deceptively spacious, modern three-storey mid townhouse sits in a prime residential development off the Ravenhill Road, with convenient access to local amenities such as Ormeau Park and Golf Club, local schools and a wide variety of coffee shops and eateries on the bustling Ormeau Road.
On the first floor entrance level, the property offers a spacious lounge with casual dining area and separate kitchen. There are three bedrooms located on the top floor and a further potential fourth bedroom on the ground floor, currently used as a study. The property also benefits from a garage, utility room and private rear garden.
Located in a popular area known for its proximity to Belfast City Centre and transport links, this property is perfectly positioned for young professionals looking for convenience and accessibility.
This deceptively spacious, modern three-storey mid townhouse sits in a prime residential development off the Ravenhill Road, with convenient access to local amenities such as Ormeau Park and Golf Club, local schools and a wide variety of coffee shops and eateries on the bustling Ormeau Road.
On the first floor entrance level, the property offers a spacious lounge with casual dining area and separate kitchen. There are three bedrooms located on the top floor and a further potential fourth bedroom on the ground floor, currently used as a study. The property also benefits from a garage, utility room and private rear garden.
Located in a popular area known for its proximity to Belfast City Centre and transport links, this property is perfectly positioned for young professionals looking for convenience and accessibility.
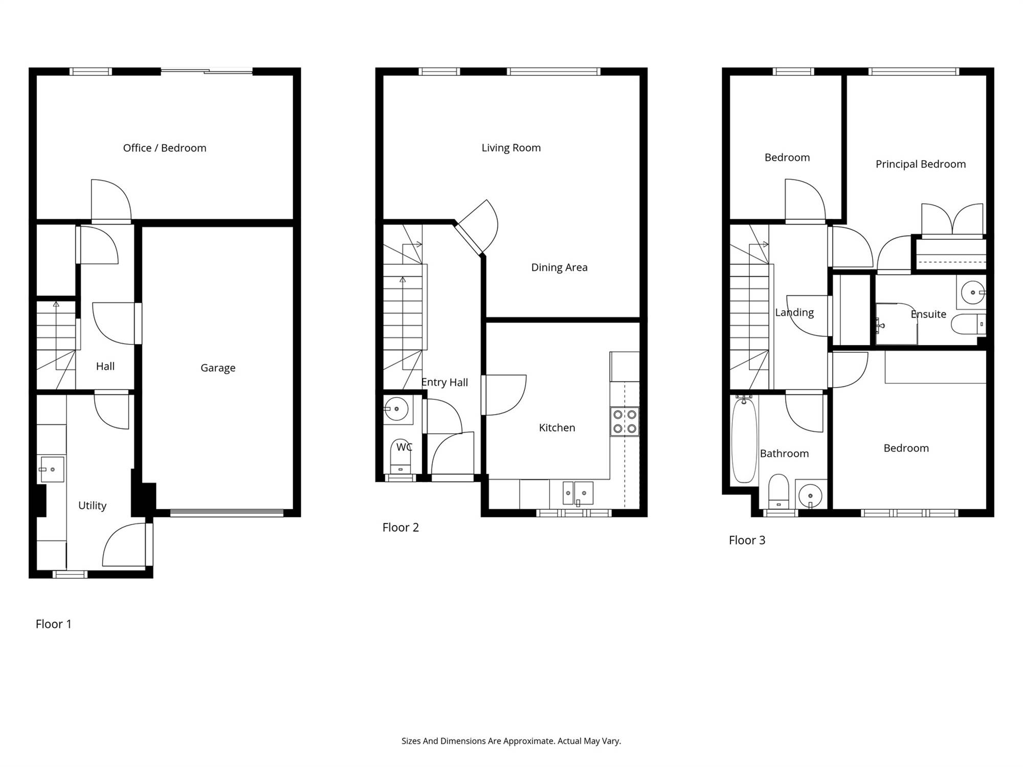
Rooms
Steps to...
FRONT FORECOURT:
Tiled floor, hard wood front door to main entrance on the mid-floor.
ENTRANCE HALL:
Wood effect laminate flooring.
DOWNSTAIRS W.C.:
White suite comprising low flush WC, pedestal wash hand basin, tiled floor.
LOUNGE / DINING: 17' 4" X 16' 3" (5.28m X 4.95m)
At widest points. Laminate wood effect flooring, casual dining area.
KITCHEN: 12' 1" X 10' 3" (3.68m X 3.12m)
Modern fully fitted kitchen with range of high and low level units, stainless steel 1.5 basin sink unit, double oven with 4 ring electric hob, stainless steel splash back, stainless steel extractor hood, dishwasher, low voltage spotlights, gas boiler, wood effect LVT flooring, central island with breakfast bar area, free standing larder.
LANDING:
Understair storage cupboard, wood effect LVT flooring, access to garage.
STUDY/BEDROOM 4: 17' 4" X 9' 6" (5.28m X 2.90m)
Laminate wood effect flooring, patio door to rear.
UTILITY ROOM: 11' 4" X 6' 6" (3.45m X 1.98m)
Range of low level units, stainless steel single drainer sink unit, plumbed for washing machine, door to front, wood effect LVT flooring, part tiled walls.
LANDING:
Access to roofspace, shelved storage cupboard, recently fitted wool carpet.
BEDROOM (1): 12' 9" X 10' 3" (3.89m X 3.12m)
Feature wood panelled walls, built in robes, recently fitted wool carpet.
ENSUITE:
White suite comprising low flush WC, pedestal wash hand basin, shower cubicle, fully tiled walls, tiled floor, low voltage spotlights.
BEDROOM (2): 10' 5" X 10' 4" (3.18m X 3.15m)
Wood effect laminate flooring.
BEDROOM (3): 9' 6" X 7' 6" (2.90m X 2.29m)
Wood effect laminate flooring.
BATHROOM:
White suite comprising pedestal wash hand basin, low flush WC, panelled bath with mixer tap and over head electric shower, fully tiled walls, tiled floor, crittal style shower screen, low voltage spotlights.
FRONT:
Driveway parking leading to garage.
GARAGE: 18' 4" X 10' 0" (5.59m X 3.05m)
Up and over door, LED lights and mains electric/consumer unit/meter.
REAR:
Private and enclosed rear garden with patio area, artificial lawn and mature trees including one cherry blossom.
CSM.
£48.24 per quarter
Broadband Speed Availability
Potential Speeds for 8 Ardenlee Place
Max Download
1800
Mbps
Max Upload
220
MbpsThe speeds indicated represent the maximum estimated fixed-line speeds as predicted by Ofcom. Please note that these are estimates, and actual service availability and speeds may differ.
Property Location
Mortgage Calculator
Directions
Heading out of Belfast on the Ravenhill Road, turn left just after the Spar petrol station onto Ardenlee Green. At T junction turn left onto Ardenlee Green and second right into Ardenlee Place.
Contact Agent
Contact Templeton Robinson (Ballyhackamore)
Request More Information
Requesting Info about...
8 Ardenlee Place, Ravenhill, Belfast, BT6 8QS
By registering your interest, you acknowledge our Privacy Policy
By registering your interest, you acknowledge our Privacy Policy