5 Bed Detached House
37 Dromona Road
Cullybackey, Ballymena, BT42 1NT
guide price
£625,000
- Status For Sale
- Property Type Detached
- Bedrooms 5
- Receptions 5
- Heating Oil
-
Stamp Duty
Higher amount applies when purchasing as buy to let or as an additional property£21,250 / £52,500*
Description
Braid Valley Housing are welcoming this stunning contemporary home in the idyllic location on the outskirts of Cullybackey. The property which is currently under construction and due to be ready for handover Summer 2026.
Located on Dromona Road, Cullybackey the site extends to circa 0.3acres in a rural setting only a short distance from Ballymena. The traditional architectural design is sure to capture the eye as well as the high specification finishes throughout.
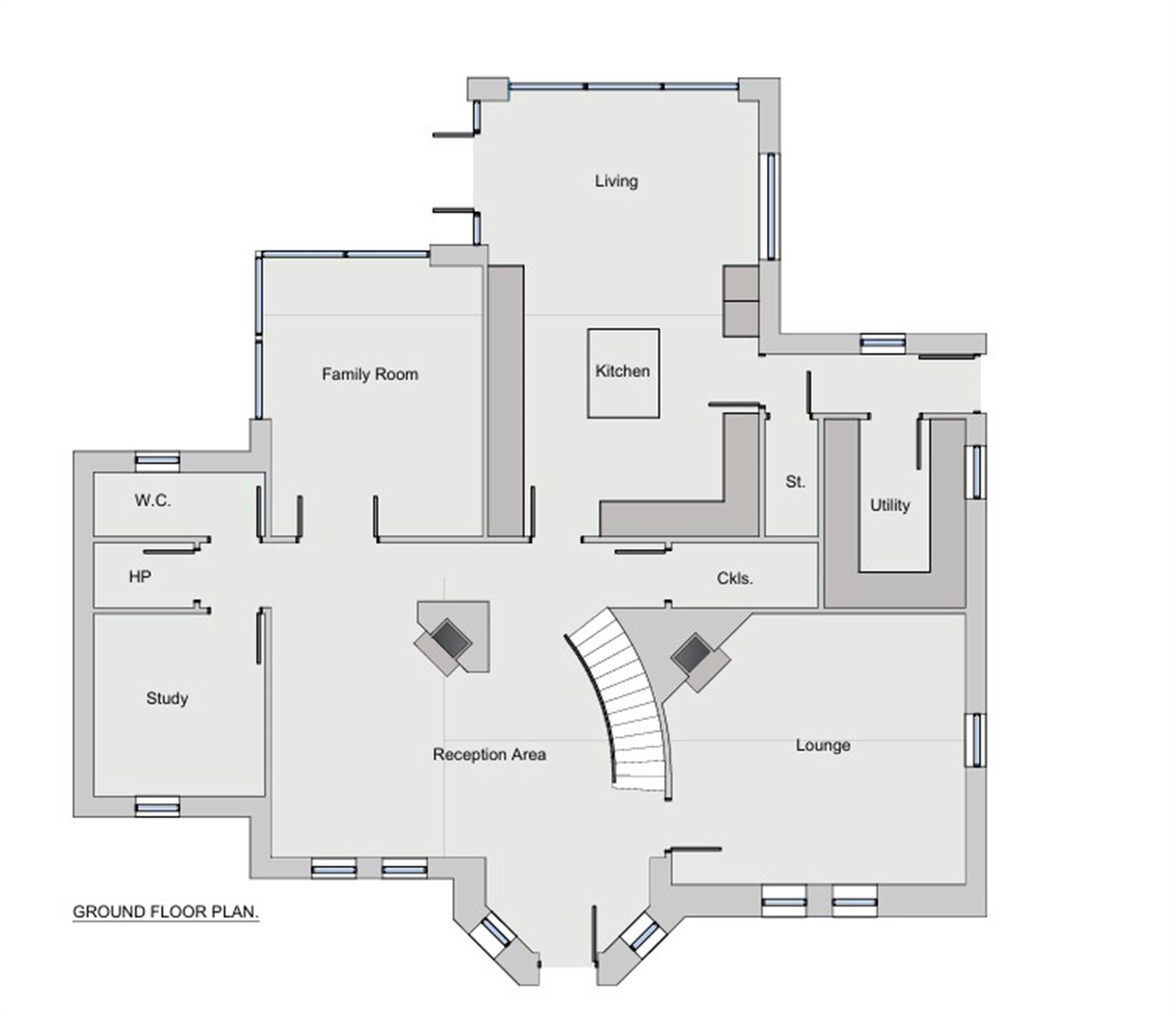
The c.3000 sq ft house welcomes you with an open plan expansive reception area and lounge, offering you access to the family room, study and open plan kitchen living area. On the first floor the home will offer 5 spacious bedrooms (4 of which will have access to an ensuite bathroom).
The bond between the house and the picturesque countryside is ever present in the floor to ceiling windows overlooking the rolling countryside and the River Maine.
Exteriorly the property will be complimented by landscaped gardens and patio areas with a garage suitable for the parking of cars or storage.
The setting of this house is truly outstanding. It is a tranquil haven immersed in the County Antrim countryside still within proximity of main road networks, schools and proximity to Ballymena and Belfast with Belfast International Airport only 22 miles away.
Contact us today to discuss this unique and stylish opportunity in a highly regarded location on 02890244000 or info@colliersni.com
Located on Dromona Road, Cullybackey the site extends to circa 0.3acres in a rural setting only a short distance from Ballymena. The traditional architectural design is sure to capture the eye as well as the high specification finishes throughout.
The c.3000 sq ft house welcomes you with an open plan expansive reception area and lounge, offering you access to the family room, study and open plan kitchen living area. On the first floor the home will offer 5 spacious bedrooms (4 of which will have access to an ensuite bathroom).
The bond between the house and the picturesque countryside is ever present in the floor to ceiling windows overlooking the rolling countryside and the River Maine.
Exteriorly the property will be complimented by landscaped gardens and patio areas with a garage suitable for the parking of cars or storage.
The setting of this house is truly outstanding. It is a tranquil haven immersed in the County Antrim countryside still within proximity of main road networks, schools and proximity to Ballymena and Belfast with Belfast International Airport only 22 miles away.
Contact us today to discuss this unique and stylish opportunity in a highly regarded location on 02890244000 or info@colliersni.com
Rooms
LOUNGE: 16' 5" X 15' 1" (5.00m X 4.60m)
RECEPTION AREA 21' 12" X 13' 11" (6.70m X 4.25m)
STUDY 9' 6" X 10' 2" (2.90m X 3.10m)
LIVING / KITCHEN 15' 1" X 24' 3" (4.60m X 7.40m)
UTILITY ROOM: 7' 10" X 10' 6" (2.40m X 3.20m)
BEDROOM (1): 12' 6" X 13' 7" (3.80m X 4.15m)
BEDROOM (2): 11' 10" X 14' 7" (3.60m X 4.45m)
BEDROOM (3): 11' 2" X 14' 1" (3.40m X 4.30m)
BEDROOM (4): 16' 5" X 10' 10" (5.00m X 3.30m)
BEDROOM (5): 15' 1" X 16' 3" (4.60m X 4.95m)
BATHROOM: 11' 2" X 7' 10" (3.40m X 2.40m)
GARAGE: 19' 8" X 19' 10" (6.00m X 6.05m)
Property Location
Mortgage Calculator
Directions
Dromona Road, Cullybackey
Contact Agent
Contact Colliers New Homes
Request More Information
Requesting Info about...
37 Dromona Road, Cullybackey, Ballymena, BT42 1NT
By registering your interest, you acknowledge our Privacy Policy
By registering your interest, you acknowledge our Privacy Policy