Contact Agent

Contact Simon Brien (South Belfast)

Contact Simon Brien (South Belfast)

3 Bed Semi-Detached House

54 Vernon Street

Belfast, County Antrim, BT7 1EX

offers over £199,950
  • Status For Sale
  • Property Type Semi-Detached
  • Bedrooms 3
  • Receptions 2
  • Bathrooms 1
  • EPC Rating C70 / C76
  • Stamp Duty
    Higher amount applies when purchasing as buy to let or as an additional property
    £1,499 / £11,497*
  • Typical Mortgage
    Click price to use our mortgage calculator
EPC Rating

Key Features & Description

  • Superb Semi Detached Home In Convenient Location
  • Spacious Living Room
  • Kitchen With Separate Dining rOOM
  • Three Bedroom
  • Fully Tiled Shower Room
  • UPVC Double Glazing
  • Phoenix Natural Gas Central Heating
  • Off Street Car Parking Space
  • Enclosed Concrete Yard
  • Description
    Located just off Donegall Pass and convenient to Botanic Avenue with all its social and recreational facilities, this semi detached is within easy walking distance of Belfast City Centre.

    Completed to a high specification and in excellent decorative order this three bedroom home has little to do but move the furniture into. Vernon Street is an excellent area which is proved to be popular with the investor and first time buyer alike.

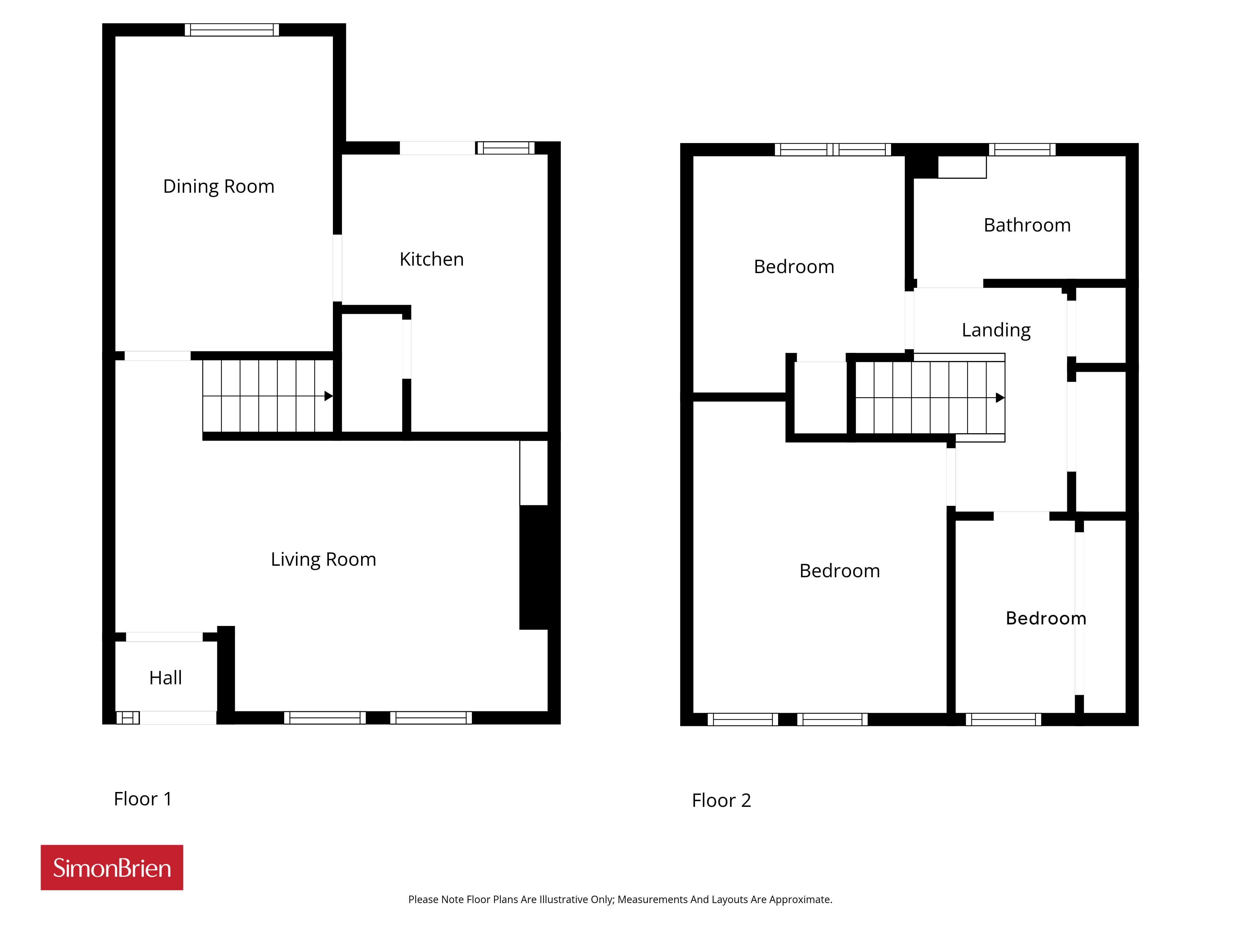
    The well laid out accommodation comprises living room, dining room, kitchen, three bedrooms and bathroom Outside is off street parking and enclosed rear garden.

    This is a low maintenance, easily managed semi detached and we would encourage interested parties to arrange a private appointment to view at their earliest convenience.

    Rooms

    Glazed wooden front door to
    Entrance Porch Tiled floor, glazed door to
    Living Room 17'5" X 10'7" (5.30m X 3.23m)
    Dining Room 12'9" X 8'7" (3.89m X 2.62m) Tiled floor
    Kitchen 11'7" X 8'4" (3.53m X 2.54m) Tiled floor, spotlighting, range of high and low level units, 1.5 bowl stainless steel sink unit, plumbed for wasshing machine, space for cooker, part tiled walls, extractor fan, pantry cupboard
    First Floor Landing Laminate wood floor, storage cupboard, access to roofspace
    Bedroom 1 12'5" X 10'3" (3.78m X 3.12m) Laminate wood floor
    Bedroom 2 9'8" X 8'7" (2.95m X 2.62m) Laminate wood floor, storage cupboard
    Bedroom 3 8'1" X 7'1" (2.46m X 2.16m) Laminate wood floor
    Fully Tiled Shower Room Low flush WC, pedestal wash hand basin with vanity unit, fully tiled shower cubicle with rainhead shower, spotlighting
    Outside Enclosed concrete yard, paved off street parking to front

    Broadband Speed Availability

    Ultrafast

    Potential Speeds for 54 Vernon Street

    Max Download
    1800
    Mbps
    Max Upload
    220
    Mbps
    The speeds indicated represent the maximum estimated fixed-line speeds as predicted by Ofcom. Please note that these are estimates, and actual service availability and speeds may differ.

    Property Location

    Show Map

    Mortgage Calculator

    Disclaimer: The following calculations act as a guide only, and are based on a typical repayment mortgage model. Financial decisions should not be made based on these calculations and accuracy is not guaranteed. Always seek professional advice before making any financial decisions.

    Contact Agent

    Contact Simon Brien (South Belfast)

    Contact Simon Brien (South Belfast)

    Request More Information
    Requesting Info about...
    54 Vernon Street, Belfast, County Antrim, BT7 1EX 54 Vernon Street, Belfast, County Antrim, BT7 1EX

    By registering your interest, you acknowledge our Privacy Policy